!!! Преференциални условия за клиенти на БИЛДИНГ БОКС!!!
Предимства на имота:
- ЛОКАЦИЯ: кв. 'Тракия', отлична локация - всичко е на минути:
* Plovdiv Plaza Mall;
* Парк Лаута - 400 000 кв.м зеленина;
* Супермаркети - Lidl, Kaufland;
* Бирария 'Jagerhof';
* Бърз достъп до всички ключови булеварди.
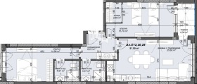
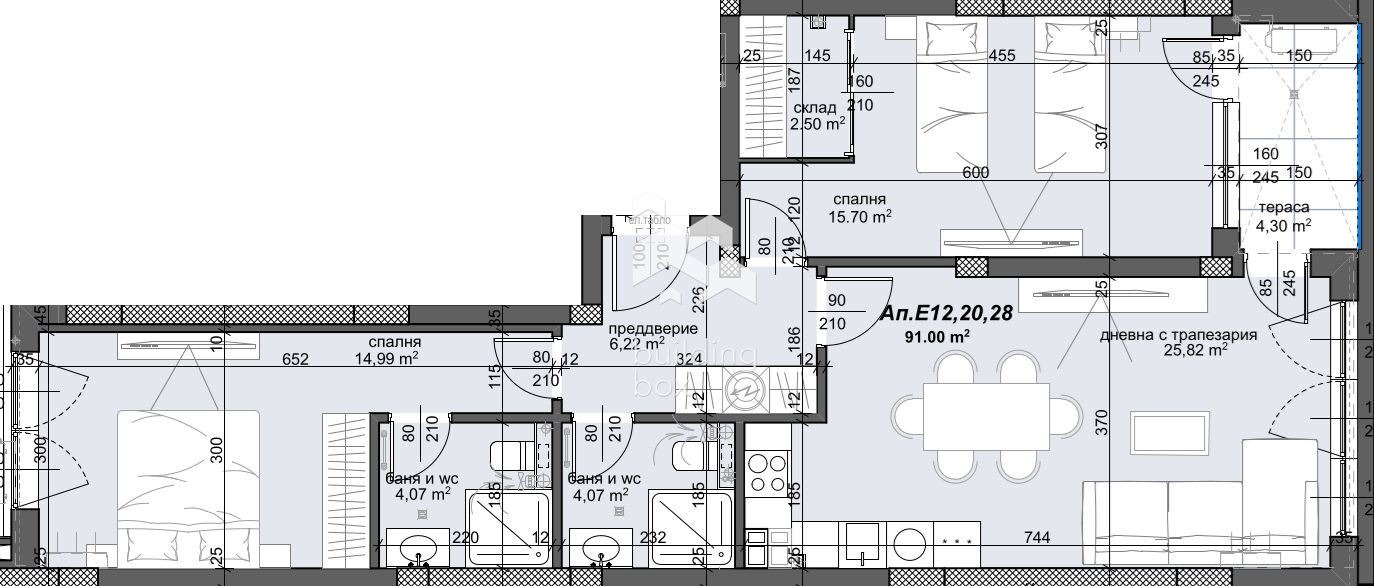
- РАЗПРЕДЕЛЕНИЕ: Състои се от голяма правоъгълна всекидневна с кухненски бокс, с площ от 25,82 кв.м, две спални с площ от 15 кв.м, като едната е със собствена гардеробна, два санитарни възела над 4 кв.м, антре и тераса.
- ЕТАЖНОСТ: 9-ти етаж от общо 10.
- ОТОПЛЕНИЕ: Електричество.
- ИЗЛОЖЕНИЕ: ЮГОИЗТОК/СЕВЕРОЗАПАД.
- ПАРКИРАНЕ: Наличен подземен паркинг, като всеки желаещ може да закупи необходим брой паркоместа.
- СГРАДА: Апартаментът се намира в новоизграждащ се комплекс с АКТ 14.
- ЕТАП НА СТРОИТЕЛСТВО: Строителството стартира през м. Януари 2024г. Очакван срок за въвеждане в експлоатация - до края на 2026г.
- ИНВЕСТИТОР: Комплексът се изгражда от инвеститор с голямо портфолио от вече завършени сгради и такива в строеж, които могат да бъдат разгледани като начин на изпълнение, качество, външен вид и стил.
- ДОБАВЕНА СТОЙНОСТ: Единствен бутиков комплекс в района:
* Фитнес в комплекса;
* Открит басейн (само за притежателите на фитнес карта);
* Изключително сигурна, безопасна и ненатоварваща схема на плащане.
БИЛДИНГ БОКС предоставя безплатна консултация и съдействие при финансиране на избрания от Вас имот.
Оферта 23837
Виж всички обяви в buildingbox.bazar.bg или тук



