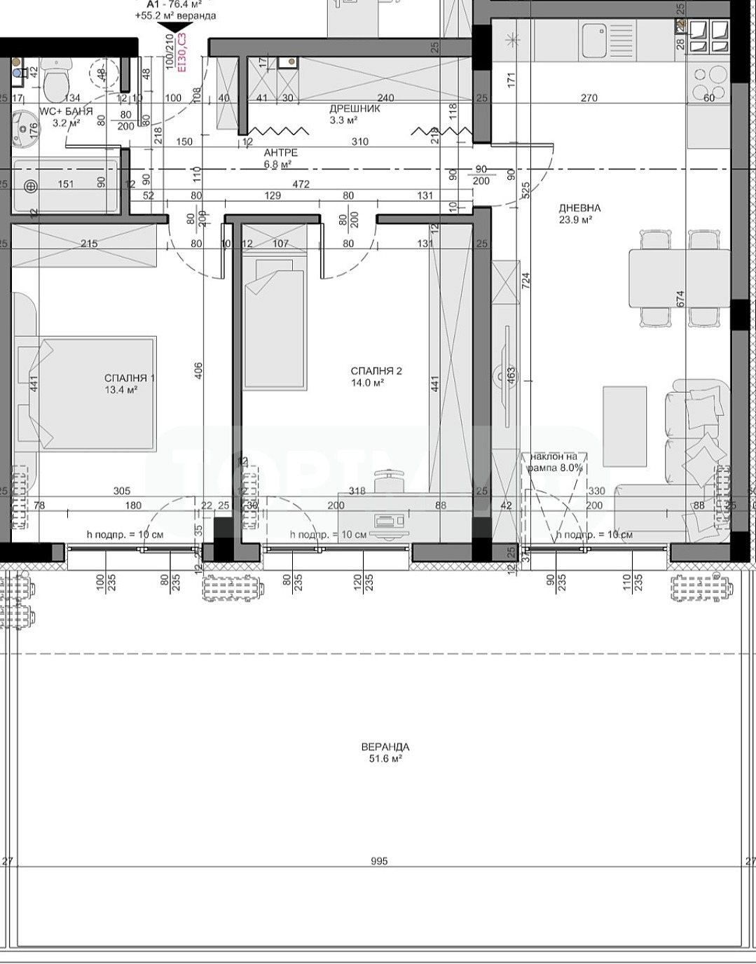
Имотът, който Ви представяме е разположен на първи висок етаж, с източно изложение и следното разпределение: антре с дрешник, всекидневна с кухненски бокс 24 кв.м., спалня 14 кв.м., втора спалня 13.4 кв.м., и трите стаи с излаз на собствена веранда 51.6 кв.м., санитарен възел.
Апартаментът ще бъде издаден съгласно БДС стандарт. С възможност за закупуване на гараж или паркомясто. Разсрочени схеми на плащане.
Добра възможност за инвестиция в район само с новопостроени сгради, паркова среда, новоизграждащи се комплекси, болница, учебни заведение, както и удобна инфраструктура към всяка точка на града.
За повече информация - свържете се с нас! Референтен номер: PL-4417
Виж всички обяви в topimmo.bazar.bg или тук



