БИЛДИНГБОКС предлага за продажба страхотен тристаен апартамент в сграда, която предстои да бъде започната - на 300м. от метростанция 'Люлин'.
Сградата е пред разрешение за строеж и има само 5 свободни апартамента.
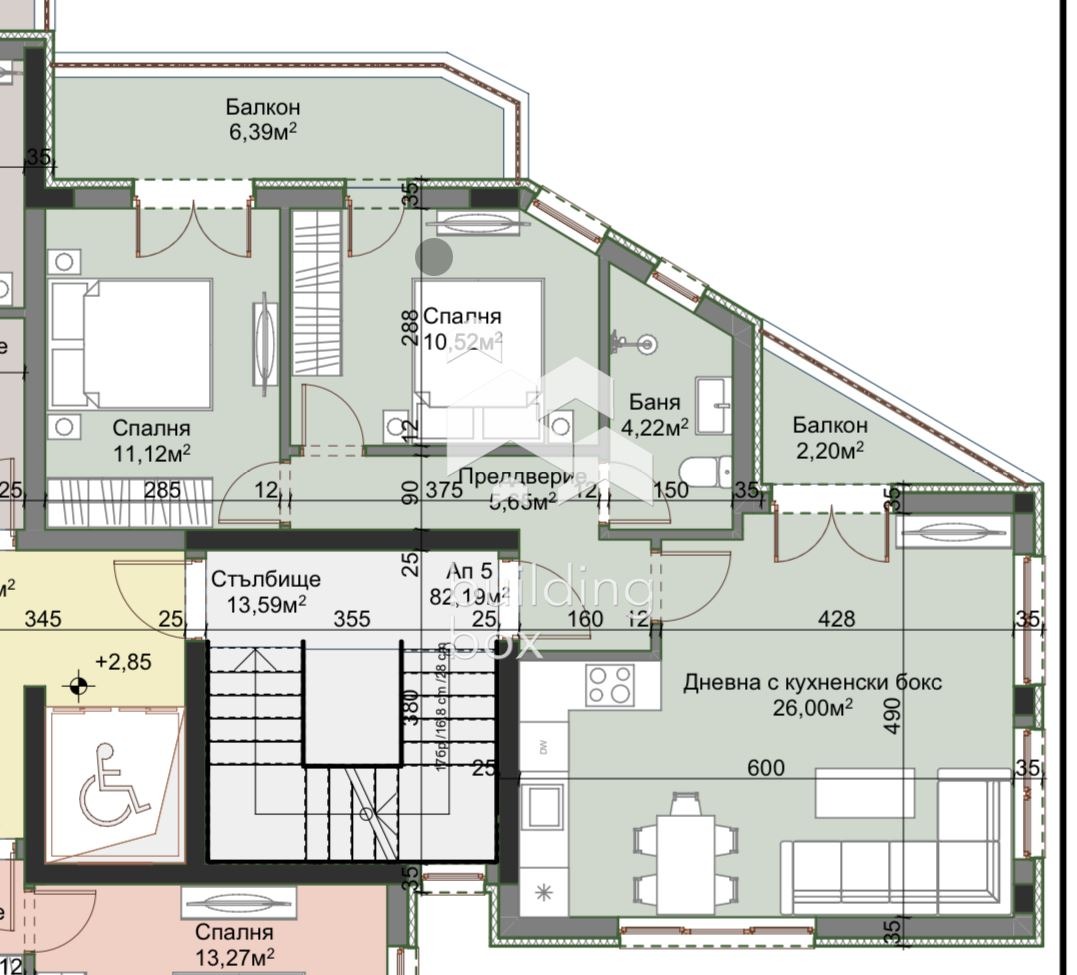
Апартамента е светъл, с три изложения - юг, изток и север. Намира се на етаж 2 от общо 5. Застроената му площ е 82,19 кв.м.; 97,26 кв.м. с общи части.
В него ще намерите две спални, просторна дневна с кухненски бокс, антре, баня с тоалетна и два балкона.
Имате възможност и за покупка на паркомясто или гараж.
Отоплението ще е на климатици.
БИЛДИНГ БОКС Ви предлага безплатна консултация и кредитно съдействие за финансиране на покупката на Вашия имот.
Оферта 26205
Виж всички обяви в buildingbox.bazar.bg или тук







