Translations in other languages:
All real estate ads published on imot.bg have been translated into English and published on the partner site
Получихте нова обява по филтър





Промяна на цена на наблюдавана обява


стара цена
нова цена
imot.bg – обяви за продажби и наеми на имоти
Сайт за имоти №1
Translations in other languages:
All real estate ads published on imot.bg have been translated into English and published on the partner site
ДОБАВИ ОБЯВА Редакция на обява
Начало Публикуване Търсене Нови сгради Агенции Новини Кредити + Още... Моят имот
Продава 3-СТАЕН
град Пловдив, Остромила
131 600 €
257 387.23 лв.

(1 400 €, 2 738.16 лв./m2)
Не се начислява ДДС
История на цената
Публикувана в 13:29 на 20 октомври, 2025 год.
Обявата е посетена 32 пъти.
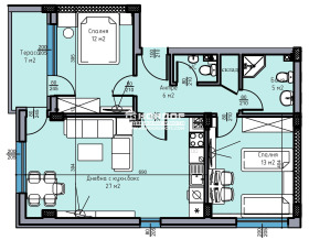
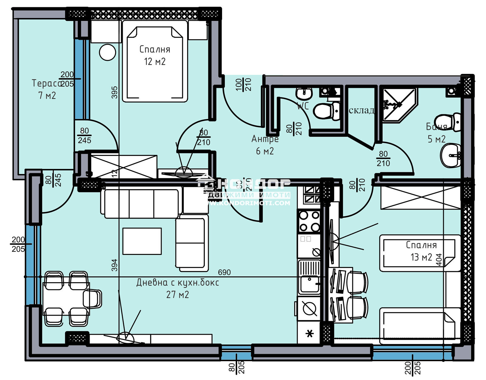
Площ:
94 m2
Етаж:
3-ти от 4
Строителство:
Тухла, Ще бъде въведен в експлоатация 2026 г.

Описание на имота:


Оферта 63367: ИНВЕСТИРАЙТЕ ВЪВ ВАШИЯ КОМФОРТ! Предлагаме ви просторен ТРИСТАЕН апартамент с изложение ЮГ/ЗАПАД в малка сграда с модернистичен почерк, съвременна визия и с нисък % общи части! Жилището се състои от просторна ъглова дневна 27кв.м. с трапезария и кухненски бокс, две самостоятелни спални: 12 и 13 кв.м., баня с тоалетна, втори санитарен възел, входно антре, перално помещение и една тераса. Строителството се извършва от висококачествени материали и съвременни технологии, които защитават вашия дом от външните влияния. За това се залага на 10см. външна топлоизолация на австрийската фирма BAUMIT, тухли WIENERBERGER създадени от 100% естествени материали, които действат като естествен регулатор на микроклимата. За по- оптимални резултати се залага на на дограма Rehau-EuroDesign 70 с механизъм с двойно отваряне. Общите части са с мрамор и травертин а асансьора е италиански електромеханичен с луксозна кабина с мрамор, италианско дърво и лед панели. Входните врати на апартамента са масивни , блиндирани на Диадорс, ел. инсталацията е изпълнена с материали на ТМТ-Елдом с контакти на Шнайдер, три вида окабеляване за интернет и ТВ- оптичен до всеки апартамент. Изберете достоен лукс и така мечтаната хармония и сигурност.ВИЖТЕ ОЩЕ ИЗГОДНИ ОФЕРТИ НА https://www.kondorimoti.com/ С ЕЖЕДНЕВНА АКТУАЛИЗАЦИЯ!
Виж всички обяви в kondor.bazar.bg или тук
Особености
Тухла
За контакт:
0876669194

Този имот се предлага само на частни лица
Брокер:
Нели Паунова
0876669194
Още оферти от брокера: Продава | Дава под наем | Купува | Наема
Агенция:
КОНДОР - НЕДВИЖИМИ ИМОТИ
0897 777 032 , 0893 554 200;
КОНДОР - НЕДВИЖИМИ ИМОТИ logo
Медал за прослужено време
В imot.bg от 2004 г.
kondor.imot.bg
Адрес:
област Пловдив, гр. Пловдив, ул.Петко Д.Петков 23,ет.4 /до ТЦ Гранд/
http://www.kondorimoti.com
ИЗПРАТИ ЗАПИТВАНЕ
ИЗПРАТИ ЗАПИТВАНЕТО

Продава 3-СТАЕН
град Пловдив, Остромила
Обява: 1c176095614098210

131 600 €
257 387.23 лв.
История на цената
(1 400 €, 2 738.16 лв./m2)

Не се начислява ДДС
ЗАПАЗИ ОБЯВАТА

Местоположение: град Пловдив, Остромила

Виж още имоти от Пловдив или още Тристайни Апартаменти в Пловдив
Допълнителни данни за имотите в района и сравнение с други райони: Търсене в АРХИВ 2013 - 2025 г.











Добави/редактирай
вид имот и район
*Средните цени са определени чрез медиана стойност.
Още обяви в imot.bg
КОНТАКТИ | SMS КОДОВЕ | СТАТИСТИКА | ПОМОЩ | ОБЩИ УСЛОВИЯ | РЕКЛАМА | ТОП ОФЕРТА | Въпроси и предложения към imot.bg
Резон Медия | Имоти | Автомобили | Работа | Новини | Обяви | Преводи и легализация 2002-2025 ® Copyright imot.bg
© imot.bg ползва и препоръчва хостинг услугите на Bulinfo.net
Следвайте ни в: