Представяме тристаен апартамент за продажба в модерна сграда, с луксозна фасада и довършителни работи в близост до Бизнес Парк София.
Комплексът се намира на изключително комуникативно място, на една крачка разстояние до метростанция Бизнес Парк , магазини Кауфланд , Фантастико Технополис , Спорт Депо , КОМО и има страхотна гледка към Витоша.
Проектът се състои от 3 входа с 9 надземни и 2 подземни етажа с подземни и надземни гаражи и подземни паркоместа.
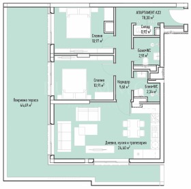
Параметри на имота:
застроена площ: 149.01 кв.м;
тераса: 5.88 кв.м;
етаж: 5-и от 9;
изложение: юг;
отопление: газ и климатици;
паркиране: има опция за закупуване на подземно паркомясто/ гараж;
такса поддръжка: 1,20 лв. без ДДС върху площта на апартамента и 0.60 лв. без ДДС за паркоместа и гаражи.
Очаквана дата за завършване на комплекса - към края на 2025 г.
Предвидено управление на общите части в комплекса, които включват цялостна организация, поддръжка и оперативен мениджмънт за безпроблемен престой на собственици на имотите в комплекса, с осигурена 24 ч. физическа охрана и видеонаблюдение.
За повече информация свържете се с нас и цитирайте референтния номер на имота. Моля, кажете, че сте видeли обявата в този сайт.
Референтен номер: SOF-130165
Тел: 0884 171 328, 02 423 26 85
Отговорен брокер:Кристина Георгиева
Виж всички обяви в luximmo.bazar.bg или тук
        
       
         
         
         
         
         
             
             
             
             
            






