ЕКСКЛУЗИВНА НОВОПОСТРОЕНА СГРАДА, САМО ОТ АГЕНЦИЯ 'КОНДОР'!
Имаме удоволствието да Ви представим новопостроеният ни обект разположен в Широкия Център.
Локация: Бърз достъп до Центъра, лесен и бърз достъп към изходите на града. Множество комуникации, непосредствена близост до реновирания бул. Марица с площадки и паркова зона по него.
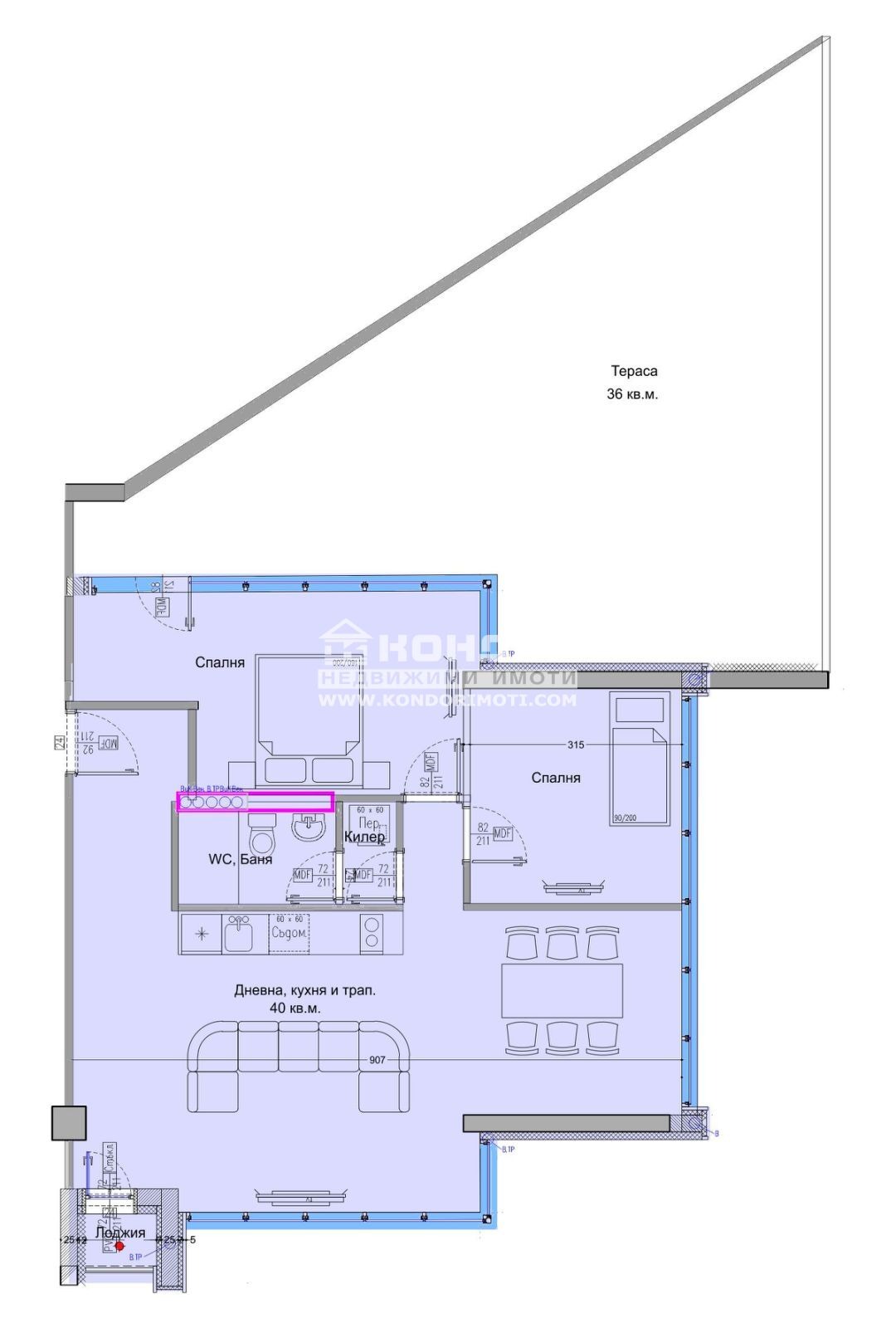
Разположение: Жилището, което Ви предлагаме е с ГОЛЯМА,ЪГЛОВА ЮГОИЗТОЧНА дневна с отделно обособен кът за хранене - 40 кв.м и лоджия, две спални, баня с тоалетна, перално помещение / килер/ и голяма тераса с площ от 36кв.м.
Изпълнение: Стъклена окачена фасада най-висок клас- Алумил с висока енергийна ефективност, повишено ниво на звукоизолация, статичност и функционалност при екстремни природни явления. * Тухли- с високо качество; Асансьори- три броя високоскоростни асансьора, като единия от тях ще бъде товарен.
* Удобен надземен и подземен паркинг с топла връзка.ВИЖТЕ ОЩЕ ИЗГОДНИ ОФЕРТИ НА https://www.kondorimoti.com/ С ЕЖЕДНЕВНА АКТУАЛИЗАЦИЯ!
Виж всички обяви в kondor.bazar.bg или тук







