💥ТРИСТАЕН
💥ЮГ/ ИЗТОК,
💥ВЪЗМОЖНОСТ ЗА ПАРКОМЯСТО!
🦁 Лайънс Груп недвижими имоти Ви предлага 3-стаен апартамент, в района на кв.Възраждане 3.
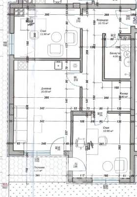
👉 Разпределението е следното:
Дневен тракт с кухненска част + Тераса ;
2 Спални ;
Баня с тоалет ;
Килер;
Входно антре;
💥ПЕРФЕКТЕН ЗА ИНВЕСТИЦИЯ, с цел отдаване под наем.
Брокер: Ели Хрисандова
Реф. Номер: 14191
Цена - 120000 евро
За повече информация и огледи: 0887 222 477
Виж всички обяви в lionsgroup.bazar.bg или тук







