Предимства на имота:
- ЛОКАЦИЯ: Близо до всичко - кв. Христо Смирненски, а именно на ул. 'Рая', в непосредствена близост до УСБАЛАГ 'Селена', Супермаркет 'Лекси' и СУ 'Св. св. Кирил и Методий'.
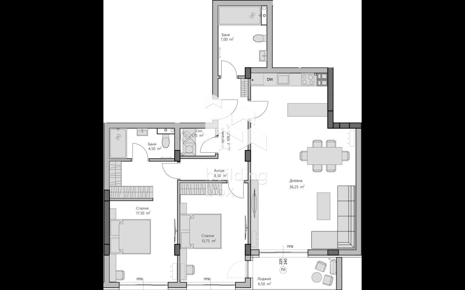
- РАЗПРЕДЕЛЕНИЕ: Дневна с кухненски бокс, с площ от 36 кв.м, две спални - по 17 кв.м и 13 кв.м, две бани с тоалетна, склад, просторно входно антре и тераса.
- ЕТАЖНОСТ: 2-ри етаж от общо 10.
- ИЗЛОЖЕНИЕ: ЮГОИЗТОК.
- ОТОПЛЕНИЕ: Електричество.
- СТРОИТЕЛСТВО: Тухлена сграда пред АКТ 14.
- ДОПЪЛНИТЕЛНИ ПРЕДИМСТВА: Премиум строителство. Качество без компромиси.
БИЛДИНГ БОКС предоставя безплатна консултация и съдействие при финансиране на избрания от Вас имот.
Оферта 25959
Виж всички обяви в buildingbox.bazar.bg или тук
        
       
         
         
             
            






