!ЛУКСОЗНИ ОБЩИ ЧАСТИ!ПРОСТОРЕН!ЕДИНСТВЕН АПАРТАМЕНТ НА ЕТАЖА!
В Новострояща се сграда пред акт 15. Имотът е разположен на шести последен етаж,разполага с блендирани врати, положена дограма, контролиран достъп към сградата.
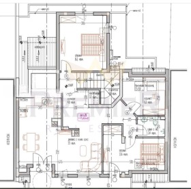
Разпределението е както следва :, с три спални, 16 кв.м/ 14кв. , детска 10 кв.м голям дневен тракт от 30 кв.м, тераса 10 кв.м , две тоалетни /една баня и килер.
Към апартамента има изба 7 кв.м. Има скосове със височина 190
В непосредствена близост има множество Магазини, Детска градина, Училища, близо до Гранд Мол , Автогара, Градски транспорт до всички точки на града.
За повече информация позвънете на посочения телефон или цитирайте код 365950
Виж всички обяви в imotipremier.bazar.bg или тук







