Сградата се намира в непосредствена близост (300 м.) до предстояща Метростанция и на пешеходно разстояние от Мол Парадайс и Метростанция 'Витоша'
Жилището е вътрешно, с функционално разпределение и е ситуирано на пети етаж с южно излоение на дневната и една от спалните.
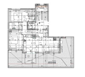
Вътрешно разпределение:
Входно антре, дневна с кухненски бокс, две спални, дрешник, две бани с тоалетни и огрома панорамна тераса /70 кв.м./ с двоен под и гледка към Витоша планина.
За Ваше улеснение прилагане чертеж на апартамента.
Предлагаме възможност за индивидуален дизайнерски проект и довършителни услуги до ключ.
Качеството на строителство е с внимание към всеки детайл:
Шумоизолация на тръби, комини и отдушници -(снимка 10).
Допълнителна топлоизолация на външните стени на апартамента от вътрешната страна с 2 см. каменна вата -(снимка 12).
Луксозни общи части с гранит и вградена шумоизолация между стените на апартаментите -(снимка 14).
Окачен таван с допълнително монтирана топлоизолация от каменна вата.
Възможност за покупка на двоен подземен гараж!
Характеристики на сградата:
- Тухли - 'Wienerberger' с 2 см шумоизолация от каменна вата между стените;
- Външна изолация - 10 см EPS на BAUMIT;
- Покрив и покривни тераси - топлоизолация XPS FIBRAN 15 см , хидроизолация - воалит NOVAGLAS;
- Отопление - природен газ с котле с изградено подово отопление с подложка от черно релефно фолио с топло и шумоизолационна плоча 3 см;
- Климатизация - положена тръбна разводка за климатична инсталация;
- Бани с тоалетни - монтирани конструкции за вграждане ТЕСЕ;
- Метални входни врати на сградата с контролиран достъп ,пощенски кутии и домофони;
- Вътрешни входни врати на апартаментите - фурнировани метални SOLID;
- Дограма - PVC 'Kommerling' 70 AD, петкамерна, външен цвят антрацит, вътрешен цвят бял, с троен стъклопакет и обков ROTO;
- ЕЛ, инсталация - монтирани ключове и контакти с монтирани електромери;
- ВИК инсталация - до тапа, с монтирани водомери;
- Апартаменти стени - Гипсова мазилка TERAZID;
- Апартаменти под - циментова замазка BAUMIT SOLIDO;
- Aпартаменти под тераси - хидроизолация MAPEI , гранитогрес I качество
- Парапет тераси - стъклен 16мм;
- Стълбища и стълбищни площадки - Египетски гранит, Стени - гипсова мазилка и латекс, Парапет - алуминиев;
- Фасада - топлоизолационна система BAUMIT PRO, EPS 10 см, силиконова мазилка и окачена фасада с Врачански камък;
- Гаражи и гаражни врати- варова мазилка, шлайфан бетон, врати HORMANN;
Асансьори - ORONA;
ЕВОЛЮТ - Недвижими имоти предоставя безплатно съдействие и консултация за ипотечни кредити от всички водещи банки в страната.
Обадете се сега и цитирайте този Код: 63 342
Виж всички обяви в evolutview.bazar.bg или тук







