Translations in other languages:
All real estate ads published on imot.bg have been translated into English and published on the partner site
Получихте нова обява по филтър





Промяна на цена на наблюдавана обява


стара цена
нова цена
imot.bg – обяви за продажби и наеми на имоти
Сайт за имоти №1
Начало Публикуване Търсене Нови сгради Агенции Новини Кредити + Още... Моят имот
Продава 3-СТАЕН
град София, Кръстова вада
612 426 €
1 197 801.14 лв.

(3 780 €, 7 393.04 лв./m2)
Цената е с включено ДДС
Публикувана в 13:31 на 7 октомври, 2025 год.
Обявата е посетена 136 пъти.
Площ:
162 m2
Етаж:
9-ти от 15
Газ:
ДА
Строителство:
Тухла, 2023 г.

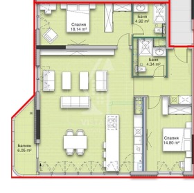
Описание на имота:

VISTATE предлага напълно обзаведен тристаен апартамент в една от най-високите сгради по Южната дъга. Сградата съчетава архитектурно съвършенство, функционалност и качествено строителство, с фантастични гледки към Витоша и централните части на София.

Местоположение:
+ Бул. Черни връх , в близост до южната дъга на Околовръстен път
+ Близо до природен парк Витоша
+ На 100 метра от бъдеща метростанция

Удобства в комплекса:
+ Проектът е реализиран посредством материали и технологии, щадящи околната среда
+ Лесен достъп до всички точки на града
+ Панорамни тераси с гледки към планината и София

Характеристики на апартамента:
+ Обща Площ: 161.59 м2
+ Застроена Площ: 132.34 м2
+ 2 спални
+ 2 бани
+ Просторен хол с кухненски бокс и остров
+ Тераса
+ Етаж 9 от 15

Разпределение:
+ Входно антре с място за масивен гардероб
+ Просторен хол с кухненски бокс
+ Прекрасна спалня с възможност за обособяване на работен кът или будоар
... Виж повече
Виж всички обяви на агенцията в property4u.bazar.bg или тук.
Особености:
• Тухла
• Обзаведен
• Асансьор
• Видео наблюдение
• Интернет връзка
• Контрол на достъпа
• С паркинг
 


За контакти:  0879207367
Брокер: Ник Апостолов

Телефон: +359879207367

Още оферти от брокера: продава | дава под наем | купува | наема
Изпрати запитване:
 
Вашето съобщение (до 1000 символа):
Вашето име: Вашия мобилен телефон:

Вашия E-mail:  
Изпрати Е-mail
Съгласявам се с общите условия и политики за защита на личните данни
Агенция: ВИСТЕЙТ

http://property4u.imot.bg

Още оферти: продава | дава под наем | купува | наема

Адрес: област София, гр. София, Бул. България 109
Тел.: 087 920 7383
https://vistate.bg

Продава 3-СТАЕН
град София, Кръстова вада
Обява: 1c175983311269411

612 426 €
1 197 801.14 лв.
(3 780 €, 7 393.04 лв./m2)

Цената е с включено ДДС
 

Местоположение: град София, Кръстова вада

Допълнителни данни за имотите в района и сравнение с други райони: Търсене в АРХИВ 2013 - 2025 г.











Добави/редактирай
вид имот и район
*Средните цени са определени чрез медиана стойност.

Още обяви в imot.bg
КОНТАКТИ | SMS КОДОВЕ | СТАТИСТИКА | ПОМОЩ | ОБЩИ УСЛОВИЯ | РЕКЛАМА | ТОП ОФЕРТА | Въпроси и предложения към imot.bg
Резон Медия | Имоти | Автомобили | Работа | Новини | Обяви | Преводи и легализация 2002-2025 ® Copyright imot.bg
Следвайте ни в: