Translations in other languages:
All real estate ads published on imot.bg have been translated into English and published on the partner site
Получихте нова обява по филтър





Промяна на цена на наблюдавана обява


стара цена
нова цена
imot.bg – обяви за продажби и наеми на имоти
Сайт за имоти №1
Translations in other languages:
All real estate ads published on imot.bg have been translated into English and published on the partner site
ДОБАВИ ОБЯВА Редакция на обява
Начало Публикуване Търсене Нови сгради Агенции Новини Кредити + Още... Моят имот
Продава 3-СТАЕН
град София, Манастирски ливади
ул. Тодор Каблешков
310 000 €
606 307.30 лв.

(2 541 €, 4 969.76 лв./m2)
Цената е с включено ДДС
История на цената
Коригирана в 5:39 на 28 октомври, 2025 год.
Обявата е посетена 230 пъти.
Площ:
122 m2
Етаж:
4-ти от 7
Газ:
ДА
Строителство:
Тухла, Ще бъде въведен в експлоатация 2025 г.

Описание на имота:


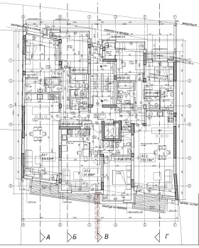
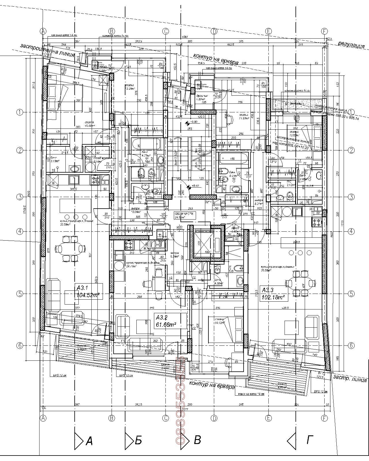
Тристаен апартамент A3.1 - от инвеститор. Изградено подово отопление. Сградата има Акт 15, предстои въвеждане в експлоатация! Очакванията са до края на 2025г. Разпределението е прикачено на снимка! Сградата се намира на ул. Шарл Шампо 22. Без агенции!
Особености
Тухла
Асансьор
Видео наблюдение
Контрол на достъпа
За контакт:
0889553355
/Частно лице/
ИЗПРАТИ ЗАПИТВАНЕ
ИЗПРАТИ ЗАПИТВАНЕТО

Продава 3-СТАЕН
град София, Манастирски ливади
ул. Тодор Каблешков
Обява: 1c175966361364656

310 000 €
606 307.30 лв.
История на цената
(2 541 €, 4 969.76 лв./m2)

Цената е с включено ДДС
0889553355
/Частно лице/ Изпрати E-mail до продавача
ЗАПАЗИ ОБЯВАТА

Местоположение: град София, Манастирски ливади, ул. Тодор Каблешков

Виж още имоти от София или още Тристайни Апартаменти в София
Допълнителни данни за имотите в района и сравнение с други райони: Търсене в АРХИВ 2013 - 2025 г.











Добави/редактирай
вид имот и район
*Средните цени са определени чрез медиана стойност.
Още обяви в imot.bg
КОНТАКТИ | SMS КОДОВЕ | СТАТИСТИКА | ПОМОЩ | ОБЩИ УСЛОВИЯ | РЕКЛАМА | ТОП ОФЕРТА | Въпроси и предложения към imot.bg
Резон Медия | Имоти | Автомобили | Работа | Новини | Обяви | Преводи и легализация 2002-2025 ® Copyright imot.bg
© imot.bg ползва и препоръчва хостинг услугите на Bulinfo.net
Следвайте ни в: