Translations in other languages:
All real estate ads published on imot.bg have been translated into English and published on the partner site
Получихте нова обява по филтър





Промяна на цена на наблюдавана обява


стара цена
нова цена
imot.bg – обяви за продажби и наеми на имоти
Сайт за имоти №1
Начало Публикуване Търсене Нови сгради Агенции Новини Кредити + Още... Моят имот
Продава 3-СТАЕН
град Варна, Аспарухово
167 000 €
326 623.61 лв.

(2 062 €, 4 032.92 лв./m2)
Цената е с включено ДДС
Публикувана в 17:00 на 3 октомври, 2025 год.
Обявата е посетена 44 пъти.
Площ:
81 m2
Етаж:
4-ти от 8
ТEЦ:
НЕ
Строителство:
Панел, Въведен в експлоатация 1970 - 1979 г.

Описание на имота:

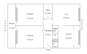
ЕКСКЛУЗИВНО! ХОЛ, КУХНЯ, ДВЕ ГОЛЕМИ СПАЛНИ, СРЕДЕН ЕТАЖ, В ЦЕНТЪРА, НА БУЛ. СВ. СВ. КИРИЛ И МЕТОДИЙ. ЕРА Варна Тренд предлага за продажба тристаен апартамент със застроена площ 81,31 кв.м по нотариален акт, разположен на четвърти етаж от общо 8 етажа. Състои се от хол (13 кв.м), кухня (10 кв.м), две големи спални (по 17 кв.м всяка) с излаз на обща за двете стаи тераса (9 кв.м), коридор (6 кв.м), баня (3,5 кв.м), самостоятелна тоалетна (1 кв.м), перално помещение (1 кв.м), прилежащо мазе (3,66 кв.м), както и 1.4492% идеални части от общите части на сградата. Изложението е изток (хол и кухня) запад (спални). На площадката на етажа има и складово помещение, което се ползва само от собствениците на предлаганото жилище.

Апартаментът се продава след ремонт, напълно обзаведен и оборудван с ел. уреди вградена фурна с котлони и аспиратор, съдомиялна машина, хладилник, пералня. Има климатици в хола и едната спалня, другата спалня е със стенен конвектор. Подовите покрития са ламинат и терак... Виж повече
Виж всички обяви на агенцията в varnatrend.bazar.bg или тук.
Особености:
• Панел
• Асансьор
• Обзаведен
   


За контакти:  0894625282
Брокер: Мирослав Христов

Телефон: 0894625282

Още оферти от брокера: продава | дава под наем | купува | наема
Изпрати запитване:
 
Вашето съобщение (до 1000 символа):
Вашето име: Вашия мобилен телефон:

Вашия E-mail:  
Изпрати Е-mail
Съгласявам се с общите условия и политики за защита на личните данни
Агенция: ЕРА ВАРНА ТРЕНД

http://varnatrend.imot.bg

Още оферти: продава | дава под наем | купува | наема

Адрес: област Варна, гр. Варна, ул. Шар 1
Тел.: 0894625282
https://www.era.bg/offices/varnatrend

Продава 3-СТАЕН
град Варна, Аспарухово
Обява: 1c175950000238848

167 000 €
326 623.61 лв.
(2 062 €, 4 032.92 лв./m2)

Цената е с включено ДДС
 

Местоположение: град Варна, Аспарухово

Допълнителни данни за имотите в района и сравнение с други райони: Търсене в АРХИВ 2013 - 2025 г.











Добави/редактирай
вид имот и район
*Средните цени са определени чрез медиана стойност.

КОНТАКТИ | SMS КОДОВЕ | СТАТИСТИКА | ПОМОЩ | ОБЩИ УСЛОВИЯ | РЕКЛАМА | ТОП ОФЕРТА | Въпроси и предложения към imot.bg
Резон Медия | Имоти | Автомобили | Работа | Новини | Обяви | Преводи и легализация 2002-2025 ® Copyright imot.bg
Следвайте ни в: