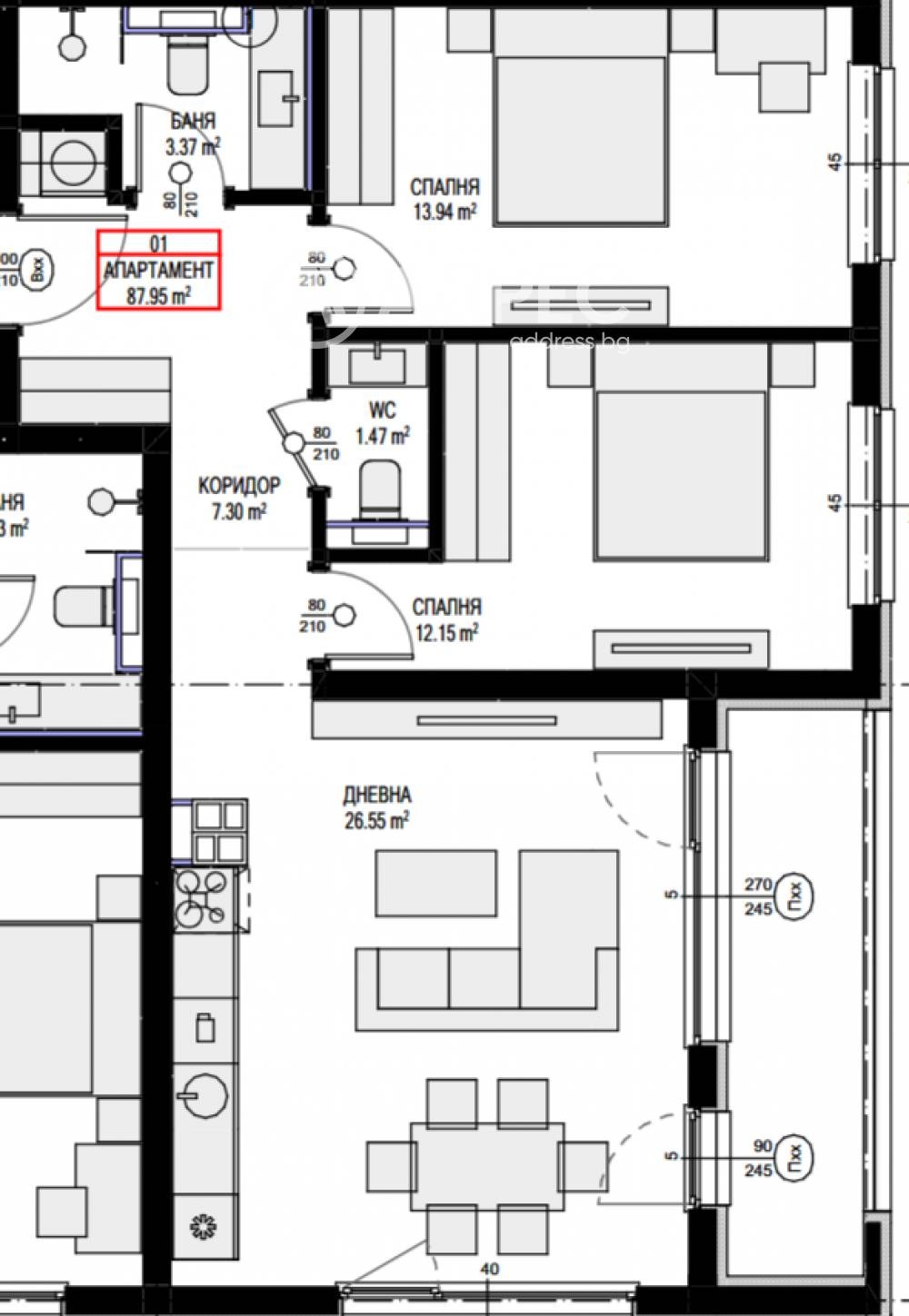
Просторен тристаен апартамент, с югоизточно изложение, състоящ се от:
входно антре, дневна с трапезария и кухненски
бокс, две спални, тераса, баня с тоалетна и
отделна тоалетна.
Сградата се намира на кратко пешеходно разстояние от НБУ и метростанция 'Мизия'.
Трети етап на комплекс 'South Project'. Сграда от 3 входа, на 9 етажа. Богат избор от жилища с една или две спални. Отопление на газ.
Контролиран достъп, асансьор, висок клас дограма и
топлоизолация.
Обади се сега и цитирай този код 670315
Виж всички обяви в address.bazar.bg или тук
        
       
         
         
         
         
             
             
             
            






