ОФЕРТА: 13295
◻️ Агенция за недвижими имоти 'ГОЛД ИМОТИ' Ви представя модерна сграда състояща се от четири жилищни секции , които ще предложат разнообразие от жилища, офиси и търговски обекти, интегрирани в удобна и елегантна градска среда.
◻️ Терасите и панорамните прозорци осигуряват максимална естествена светлина и гледки към града.
- ЦЕНИ започващи от 999 /кв.м с възможност за отсъпки в зависимост от начина на плащане
🎯 Видове апартаменти :
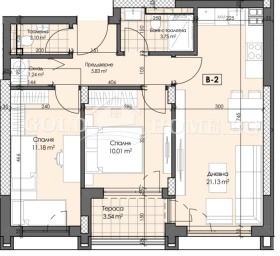
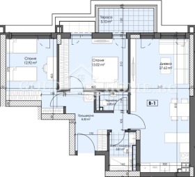
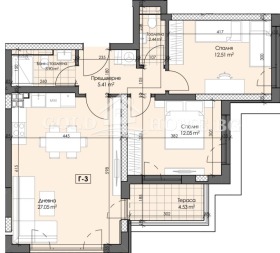
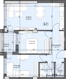
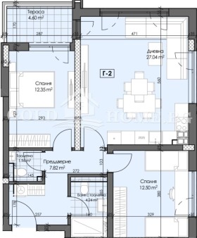
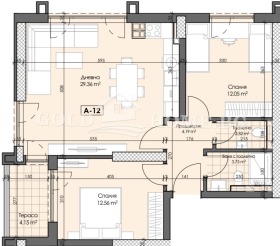
Предлагаме двустайни и тристайни апартаменти с функционални разпределения:
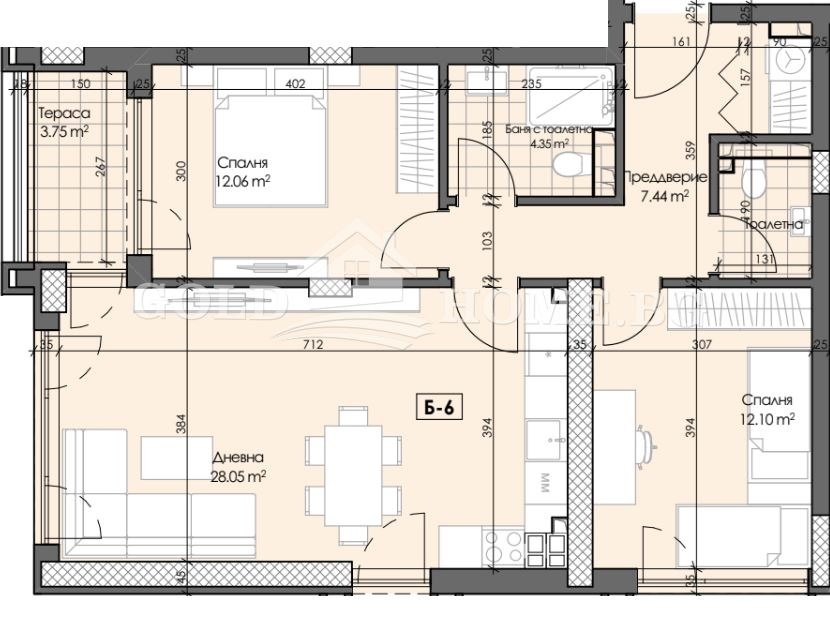
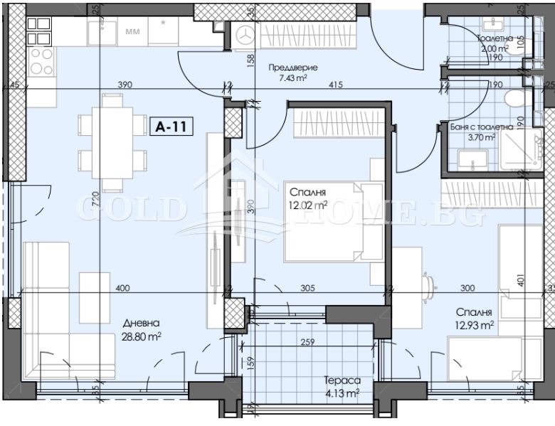
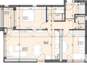
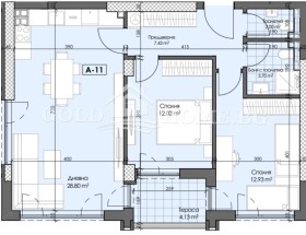
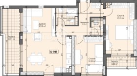
➡️Разпределение:
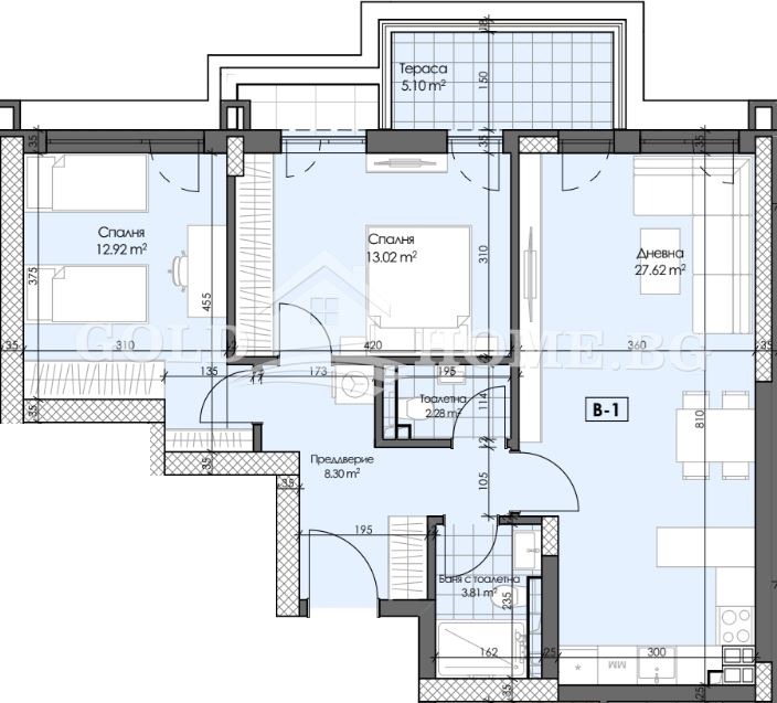
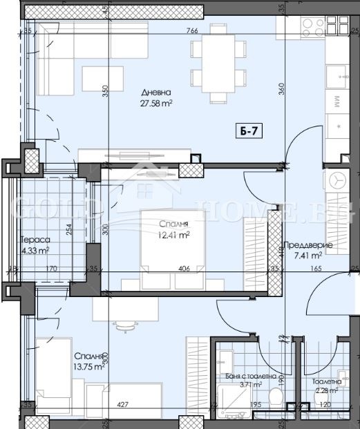
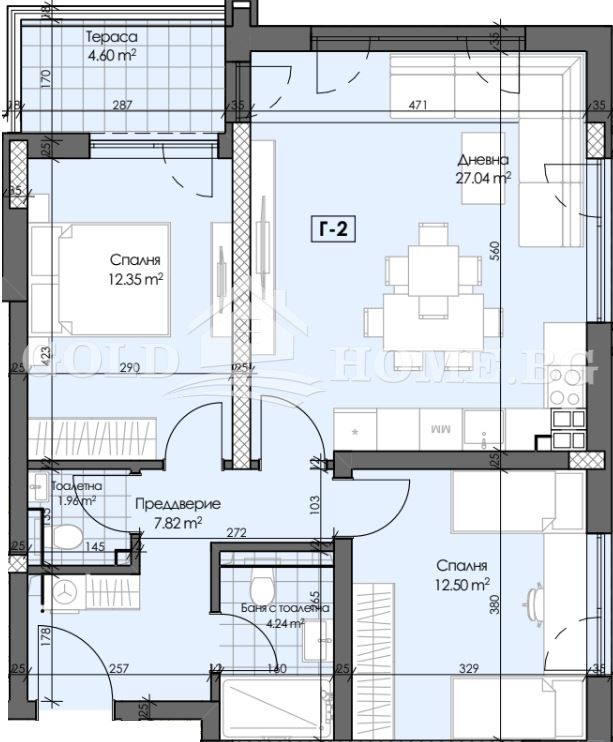
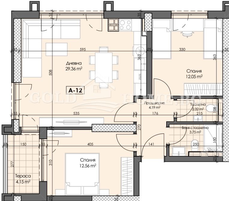
Тристайните жилища се състоят от: входно антре, всекидневна с кухненски бокс, две спални, баня с тоалетна, отделна тоалетна , тераса , склад или избено помещение.
Налични модули:
- 85,83 кв.м - 101 781 евро ;
- 105,53 кв.м - 105 425 евро ;
- 113,29кв.м - 113 176 евро ;
- 97,17 кв.м - 115 632 евро ;
- 98,68 кв.м - 117 429 евро ;
- 99,95 кв.м - 118 940 евро ;
- 103,32 кв.м - 119 851 евро ;
- 101,32 в.м - 120 570 евро ;
- 103,46кв.м - 123 117 евро ;
- 129,10кв.м - 157 122 евро ;
Характеристики и предимства:
✔️Степен на завършеност :
◼ Стени и тавани гипсова бяла мазилка; под циментова замазка;
◼ Дограма с троен стъклопакет;
◼ Тераса гранитогрес; стени и тавани фасадна мазилка с монтирани осветителни тела; парапет .
◼ Входна врата блиндирана, MDF;
◼ Електро инсталация с монтирани ключове и контакти;
◼ ВиК инсталация до тапи, с монтиран водомер с дистанционно отчитане;
◼ Инсталация за видеодомофон;
◼ Кабелна инсталация извод за кабелна телевизия и интернет;
◼ Фасада топлоизолация; цветна мазилка; HPL, еталбонд, окачена алуминиева фасадна система Е 85 със стъклопакет;
◼ Общи части на сградата напълно завършени
стълбища и площадки под гранитогрес, камък; стени и тавани гипсова мазилка и боя; електроинсталация с ключове и осветителни тела съгласно проект;
входна врата с контрол на достъп;
пътнически асансьори електрически;
пощенски кутии;
🚗Паркиране :
Възможност за закупуване на подземни и надземни паркоместа и партерни и подземни гаражи.
✔️Срокове на изпълнение :
Очаква се откриване на строителната площадка. Пусков срок - 36 месеца от откриване на строителната площадка.
📍Локация:
В непосредствена близост се намира 'Международен панаир' , хипермаркети Kaufland и LIDL ,бърз достъп както до центъра , така и до няколко изхода на града, автобусни спирки и различни търговски обекти.
➡️'ГОЛД ИМОТИ' Ви предлага да се възползвате от професионално кредитно посредничество чрез Credit Center при ипотека, потребителски кредит и рефинансиране!
-УСЛУГАТА Е ИЗЦЯЛО БЕЗПЛАТНА!
-ИЗГОТВЯНЕ НА НЯКОЛКО ОФЕРТИ ОТ ВОДЕЩИ БАНКИ!
-НАЙ-ИЗГОДНИ УСЛОВИЯ СПРЯМО ВАШИЯТ ПРОФИЛ!
-НЕ Е НЕОБХОДИМО ДА СЕ РАЗКАРВАТЕ ВЪВ ВСЕКИ КЛОН НА РАЗЛИЧНИ БАНКИ!
➡️ Още атрактивни и актуални оферти може да намерите на нашия сайт goldhome.bg
➡️За повече информация и при интерес за оглед, моля свържете се с нас.
Виж всички обяви в gold_imoti.bazar.bg или тук
        
       
         
         
         
         
         
         
         
         
         
         
         
             
             
             
             
             
             
             
             
             
             
            






