Translations in other languages:
All real estate ads published on imot.bg have been translated into English and published on the partner site
Получихте нова обява по филтър





Промяна на цена на наблюдавана обява


стара цена
нова цена
imot.bg – обяви за продажби и наеми на имоти
Сайт за имоти №1
Начало Публикуване Търсене Нови сгради Агенции Новини Кредити + Още... Моят имот
Продава 3-СТАЕН
град София, Младост 4
206 280 €
403 448.61 лв.

(2 242 €, 4 384.97 лв./m2)
Цената е с включено ДДС
Публикувана в 17:03 на 1 октомври, 2025 год.
Обявата е посетена 76 пъти.
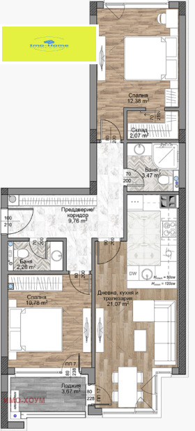
Площ:
92 m2
Етаж:
5-ти от 9
Газ:
ДА
Строителство:
Тухла, Ще бъде въведен в експлоатация 2026 г.

Описание на имота:

БЕЗ КОМИСИОН! АКТ 14! ПОСЛЕДЕН ТРИСТАЕН НА ТАЗИ ЦЕНА! ТОП ЛОКАЦИЯ!
Компактен тристаен апартамент в новострояща се сграда с акт 14 - очакван акт 16 ноември 2026г.

Площ 91.68 кв.м.с общи части / 78.55 кв.м. застроена.

Сградта се намира в непосредствена близост до 'Бизнес Парк', както и до метростанция - на 10 мин. пешеходно разтояние. Изключително добра комуникативност с центъра на града посредством бул. Александър Малинов и околовръстно шосе. Множество магазини, детски градини и училища в района.

Сградата ще е с висок клас на енергийна ефективност и с контрол на достъпа.

С възможност за довършване 'до ключ'
Апартаменмта се издава на стени - гипсова шпакловка, подове - циментова замазка
Подовете на терасите и лоджиите са в завършен вид с положен гранитогрес

Налични гаражи на цена 32 000 с ДДС, паркомясто на цена от 21 000 с ДДС

Имота предтсавлява отлична инвестиционна възможност както за лично ползване така и за отдаване под наем.

Побързайте преди някой да Ви изпревари :)

Пр... Виж повече
Виж всички обяви на агенцията в imo-home.bazar.bg или тук.
Особености:
• Тухла
       


За контакти:  098 8951012
Този имот се предлага само на частни лица
Агенция: ИМО-ХОУМ

http://imo-home.imot.bg

Още оферти: продава | дава под наем | купува | наема

Адрес: област София, гр. София, Ул. Свети Наум 10
Тел.: 0988951012
http://imo-home.com
Изпрати запитване:
 
Вашето съобщение (до 1000 символа):
Вашето име: Вашия мобилен телефон:

Вашия E-mail:  
Изпрати Е-mail
Съгласявам се с общите условия и политики за защита на личните данни

Продава 3-СТАЕН
град София, Младост 4
Обява: 1c175932738679576

206 280 €
403 448.61 лв.
(2 242 €, 4 384.97 лв./m2)

Цената е с включено ДДС
 

Местоположение: град София, Младост 4

Допълнителни данни за имотите в района и сравнение с други райони: Търсене в АРХИВ 2013 - 2025 г.











Добави/редактирай
вид имот и район
*Средните цени са определени чрез медиана стойност.

КОНТАКТИ | SMS КОДОВЕ | СТАТИСТИКА | ПОМОЩ | ОБЩИ УСЛОВИЯ | РЕКЛАМА | ТОП ОФЕРТА | Въпроси и предложения към imot.bg
Резон Медия | Имоти | Автомобили | Работа | Новини | Обяви | Преводи и легализация 2002-2025 ® Copyright imot.bg
Следвайте ни в: