Жилищна сграда NEW LULIN 2 е разположена в район с добре развита инфраструктура, на ул. Ицках Грациани. В непосредствена близост до Околовръстен път, локацията предлага отлична комуникативност и лесен автомобилен достъп от всички страни. За удобство на бъдещите обитатели, разчитащи на масовия градски транспорт са на разположение спирки на автобусния и тролейбусен транспорт, а на 3 минути пешеходно разстояние ще се намира Метростанция Люлин 2 от планираното разширение на Линия 1.
ТРАНСПОРТ
Автобусни спирки на линии 81, 82, 108, 111;
Тролейбусна спирка на линия 6;
Бъдеща метростанция на линия 1 и линия 2;
Тухлена сграда пред акт 15!
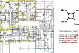
Сградата е на 10 етажа, с разгъната застроена площ от 7345 кв. м и впечатлява с идеално виждане на модерния градски човек за комфортно жилище, съчетано с функционалност и практичност. Дизайнът е резултат от съвместната работа на дизайнерите и инвеститора, с цел създаване усещане за стабилен и уютен дом, за спокойствие и хармония. Жилищата са с удобно разпределение, изчистени линии и с внимание към детайлите.
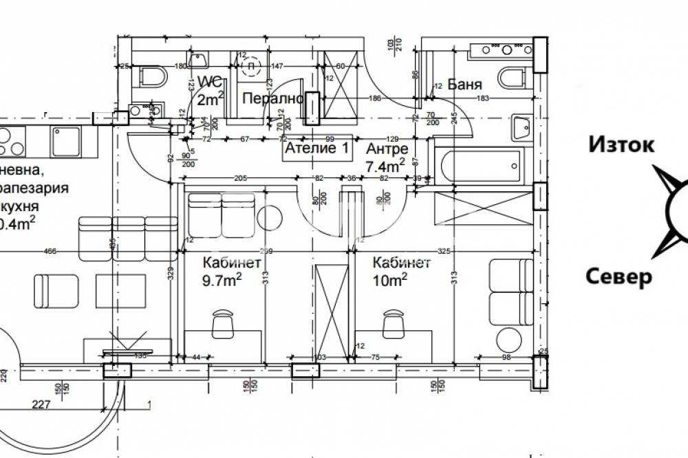
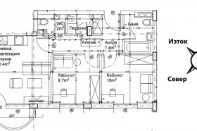
Сградата включва общо 98 апартамента и ателиета, магазини. Всяко жилище
има достъп до стълбище и два асансьора, осигуряващ връзка към всички етажи
от сутерен до 10-ти етаж. Сградата разполага с два входа, от ул. Ицках
Грациани . Магазините са, разположени на партерно ниво, имат обособени
самостоятелни входове и складови помещения към тях. Подхода към сградата е
от улица Добринова скала и ул. Ицках Грациани. Предвидени са 29 подземни и 40 надземни паркоместа, както и над 30 броя стойки за велосипеди.
Монолитна стоманобетонна конструкция, стоманобетонен плосък покрив в периферията, на който има 45 градусови скосения с хидро и топло изолация.
ОТОПЛИТЕЛНА ИНСТАЛАЦИЯ И ВЕНТИЛАЦИЯ
Сградата ще бъде на ТЕЦ. Ще има изградена централна абонатна станция, разположена в сутерена на сградата. Общите помещения на всеки апартамент са снабдени с разводки за климатик.
ДОГРАМА
Kьомерлинг Петкамерна PVC дограма с двоен стъклопакет и нискоемисийно стъкло.
Общите части ще са луксозно изградени с LED осветление и декоративна мазилка. Стълбището е предвидено от естествен цветен камък.
ФАСАДА
Стените ще са изградени с тухли с дебелина 25 см и изолация от 10 см
EPS.
ЕЛЕКТРОИНСТАЛАЦИЯ
Електромерно табло, монтирано
Виж всички обяви в address.bazar.bg или тук







