Сградата е пред АКТ 15 и ще бъде завършена началото на 2026-та година.
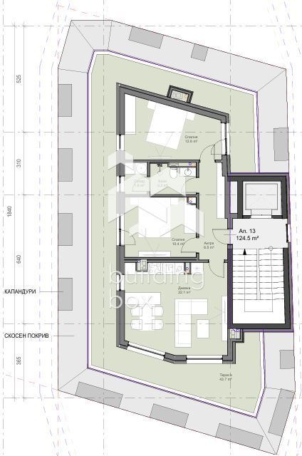
Апартаментът се намира на пети етаж от общо пет етажа, със застроена площ от 135,04 кв.м и има следното разпределение: дневна с кухненски бокс, 2 спални, баня с тоалетна, склад, антре и тераса 52,70 кв.м..
Жилището е с всички изложения, тъй като е самостоятелен на етажа.
Отоплението е предвидено на газ.
Сградата има модерна архитектура с подчертана индивидуалност и уникален собствен стил. Жилищата са проектирани така, че да имат повече естествена светлина и простор. Строителството се изпълнява с качествени материали.
Сградата се отличава със своята модерна визия и добро местоположение в тих и спокоен район. Сградата се намира на десет минути пеша от метростанция 'Горна баня', на 4 минути пеша до автобусни спирки и на 12 минути пеша до НБУ. Локацията на сградата осигурява удобство и възможност за бърза връзка до главни булеварди и изходящи пътни артерии на столицата.
Предлага се също и подземно паркомясто на цена от 25 000 евро.
Срокове за изпълнение:
АКТ 15 март 2026 г.
АКТ 16 юни 2026г.
Гъвкави схеми на плащане!
БИЛДИНГ БОКС предоставя безплатна консултация и съдействие при финансиране на избрания от Вас имот
Оферта 25586
Виж всички обяви в buildingbox.bazar.bg или тук
        
       
         
         
         
         
         
             
             
             
             
            






