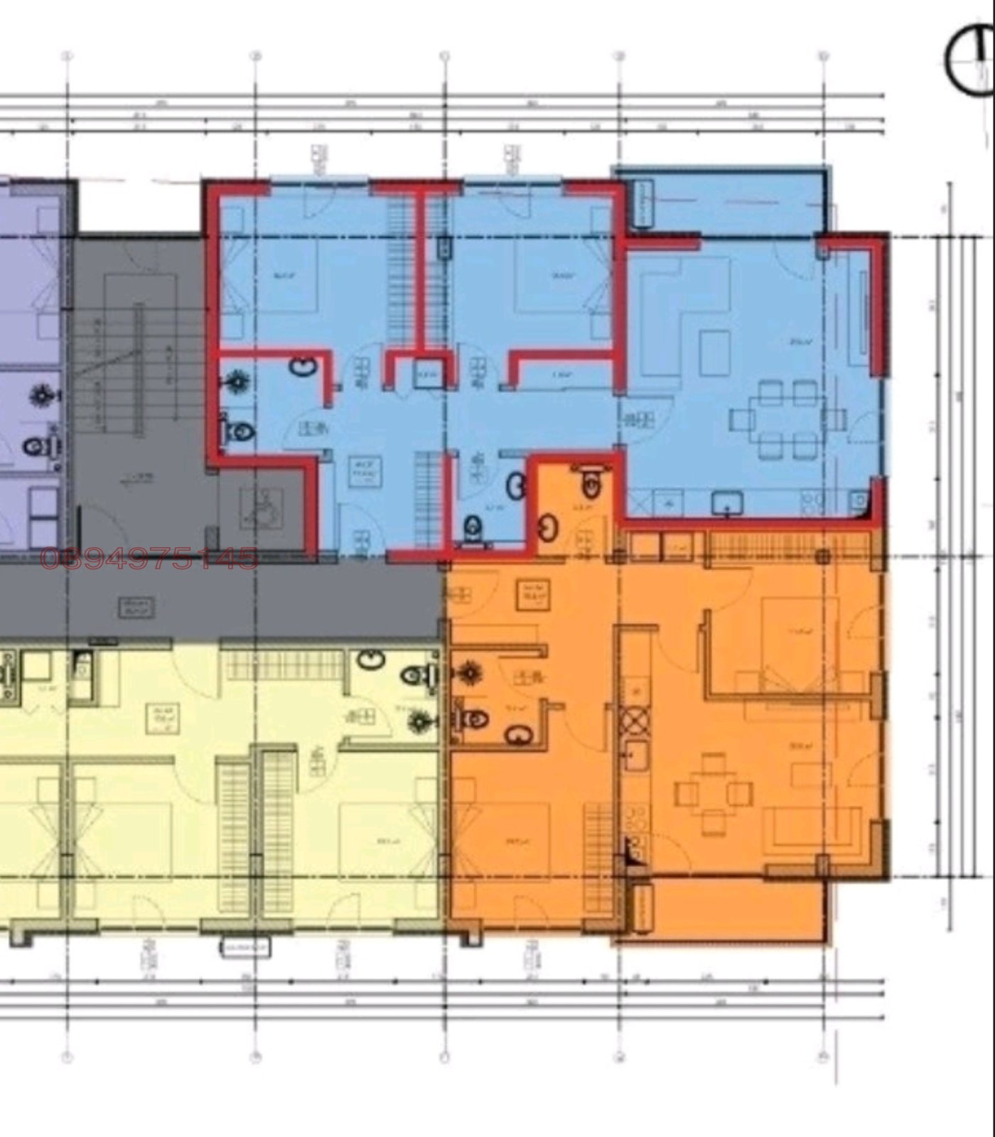
✨ Продавам своя нов дом в Кайсиева градина, Варна просторен 3-стаен апартамент с панорамна гледка и усещане за свобода.
🏡 110 кв.м. комфорт светла дневна с място за събирания, две уютни спални, баня, отделна тоалетна, перално помещение, килер и тераса за утринното кафе.
🆕 Сградата е модерна, в строеж, с Акт 16 през 2026 г. апартаментът се предлага по БДС, за да го завършите по ваш вкус.
🚗 Възможност за паркомясто.
📍 Локацията е повече от удобна всичко необходимо е на една крачка.
💶 Цена: 150 000 евро с включено паркомясто!







