Translations in other languages:
All real estate ads published on imot.bg have been translated into English and published on the partner site
Получихте нова обява по филтър





Промяна на цена на наблюдавана обява


стара цена
нова цена
imot.bg – обяви за продажби и наеми на имоти
Сайт за имоти №1
Начало Публикуване Търсене Нови сгради Агенции Новини Кредити + Още... Моят имот
Продава 3-СТАЕН
град Варна, Кайсиева градина
134 500 €
263 059.14 лв.

(1 372 €, 2 683.40 лв./m2)
Цената е с включено ДДС
Публикувана в 16:23 на 24 септември, 2025 год.
Обявата е посетена 168 пъти.
Площ:
98 m2
Етаж:
4-ти от 9
Строителство:
Тухла, Ще бъде въведен в експлоатация 2028 г.

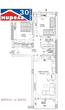
Описание на имота:

455919 Агенция Мирела продава тристаен апартамент в нова жилищна сграда в процес на строителство.

Предимства: апартамент разположен на среден етаж с оптимално разпределение на вътрешното пространство. Предава се в степен на завършеност БДС, /шпакловка и замазка/, което ви дава предимство да завършите жилището си по изискванията които имате.

Проектът е дело на предпочитана и утвърдена строителна инвестиционна компания с дългогодишен опит и множество построени сгради на територията на гр. Варна.

Апартаментът се състои от входно антре, коридор, дневен тракт с кухненски бокс, две спални, две бани с тоалетни и тераса.

Жилището е с изложение север/юг.

Допълнително към апартаментът може да закупите външно и или подземно паркомясто за вашият автомобил.

Разполагаме и с други типове тристайни апартаменти в сградата.

Сградата е в начален етап на строителство, срока за получаване на акт 16 е през месец Декември 2028 година.

При покупка на апартамент в сградата, цената се разсрочва до прикл... Виж повече
Виж всички обяви на агенцията в mirelavarna.bazar.bg или тук.
Особености:
• Тухла
       


За контакти:  0883940398
Брокер: Ивайло Йонков

Офис: МИРЕЛА ВАРНА
Телефон: 0883940056

Още оферти от брокера: продава | дава под наем | купува | наема
Изпрати запитване:
 
Вашето съобщение (до 1000 символа):
Вашето име: Вашия мобилен телефон:

Вашия E-mail:  
Изпрати Е-mail
Съгласявам се с общите условия и политики за защита на личните данни
Агенция: МИРЕЛА - гр. ВАРНА

http://mirelavarna.imot.bg

Още оферти: продава | дава под наем | купува | наема

Адрес: област Варна, гр. Варна, бул. Мария Луиза 16
Тел.: 052600675
http://www.mirela.bg

Продава 3-СТАЕН
град Варна, Кайсиева градина
Обява: 1c175872023165375

134 500 €
263 059.14 лв.
(1 372 €, 2 683.40 лв./m2)

Цената е с включено ДДС
 

Местоположение: град Варна, Кайсиева градина

Допълнителни данни за имотите в района и сравнение с други райони: Търсене в АРХИВ 2013 - 2025 г.











Добави/редактирай
вид имот и район
*Средните цени са определени чрез медиана стойност.

Още обяви в imot.bg
КОНТАКТИ | SMS КОДОВЕ | СТАТИСТИКА | ПОМОЩ | ОБЩИ УСЛОВИЯ | РЕКЛАМА | ТОП ОФЕРТА | Въпроси и предложения към imot.bg
Резон Медия | Имоти | Автомобили | Работа | Новини | Обяви | Преводи и легализация 2002-2025 ® Copyright imot.bg
Следвайте ни в: