Translations in other languages:
All real estate ads published on imot.bg have been translated into English and published on the partner site
Получихте нова обява по филтър





Промяна на цена на наблюдавана обява


стара цена
нова цена
imot.bg – обяви за продажби и наеми на имоти
Сайт за имоти №1
Translations in other languages:
All real estate ads published on imot.bg have been translated into English and published on the partner site
ДОБАВИ ОБЯВА Редакция на обява
Начало Публикуване Търсене Нови сгради Агенции Новини Кредити + Още... Моят имот
Продава 3-СТАЕН
град Пловдив, Христо Смирненски
маг. 'Лекси'
249 050 €
487 099.46 лв.

(1 474 €, 2 882.89 лв./m2)
Цената е с включено ДДС
История на цената
Коригирана в 9:02 на 22 октомври, 2025 год.
Обявата е посетена 166 пъти.
Площ:
169 m2
Строителство:
Тухла, Ще бъде въведен в експлоатация 2027 г.

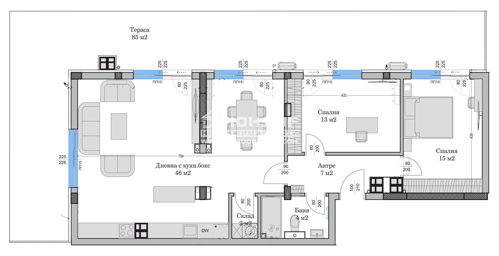
Описание на имота:


Оферта 67477: Предлагаме на вашето внимание тристаен апартамент с изложение юг/запад в новоизграждаща се Иновативна и модерна сграда със собствен стил с изчистена визия, проектирана така, че да създаде максимален комфорт и уют за живеене. Жилището се състои от просторна ъглова дневна 46кв.м. оформена на кътове: кът за мека мебел, кухненска част с остров и отделна трапезария, две самостоятелни спални: детска 13кв.м и родителска 15кв.м., баня с тоалетна, перално помещение, антре с място за гардероб и една голяма панорамна тераса. Проектът предвижда застрояване, просторни и панорамни жилища, вътрешен двор с оформени зелени зони за релакс и почивка. Сградата привлича вниманието със своята локация, разположена в близост до Гребна база и парк Отдих и култура, обособили се като едни от най-развиващите се и предпочитани райони за живеене в града, както и до няколко от най-добрите болници, а именно ( Пълмед, Селена, Хирургиите ). В близост до сградата има големи хранителни магазини, детска градина, училище, автобусни спирки и всичко необходимо за едно нормално ежедневие. Инвеститора осъществява сгради, които задават нов стандарт в жилищното строителство. Комбинирайки модерни технологии, безкомпромисно качество и прецизен дизайн, за да осигурим среда, която предлага комфорт, естетика и функционалност. Сградата ще бъде с ИЗЦЯЛО окачена, ВЕНТЛИРУЕМА ФАСАДА с енергийна ефективност от висок клас, система УМЕН ДОМ, високоскоростни асансьори, както и към всяко паркомясто ще има прекаран трифазен ток за поставяне на ЗАРЯДНА СТАНЦИЯ за електроавтомобили, Видеонаблюдение, най-висок клас блиндирани врати за висока степен на сигурност, master key система за още по-сигурен контрол на достъп, автоматизирани системи против пожари , които осигуряват бърза реакция в случай на необходимост. Паркирането е решено с голям подземен както и надземен паркинг като има голям избор на паркоместа и гаражи. Гъвкави схеми на разсрочено плащане в рамките на строителството, както и съдействие за банково кредитиране с изключително изгодни условия за клиенти на агенция !!!
ВИЖТЕ ОЩЕ ИЗГОДНИ ОФЕРТИ НА https://www.kondorimoti.com/ С ЕЖЕДНЕВНА АКТУАЛИЗАЦИЯ!
Виж всички обяви в kondor.bazar.bg или тук
Особености
Тухла
За контакт:
0896720455

Този имот се предлага само на частни лица
Брокер:
Христо Трифонов
0896720455
Още оферти от брокера: Продава | Дава под наем | Купува | Наема
Агенция:
КОНДОР - НЕДВИЖИМИ ИМОТИ
0897 777 032 , 0893 554 200;
КОНДОР - НЕДВИЖИМИ ИМОТИ logo
Медал за прослужено време
В imot.bg от 2004 г.
kondor.imot.bg
Адрес:
област Пловдив, гр. Пловдив, ул.Петко Д.Петков 23,ет.4 /до ТЦ Гранд/
http://www.kondorimoti.com
ИЗПРАТИ ЗАПИТВАНЕ
ИЗПРАТИ ЗАПИТВАНЕТО

Продава 3-СТАЕН
град Пловдив, Христо Смирненски
маг. 'Лекси'
Обява: 1c175863424312538

249 050 €
487 099.46 лв.
История на цената
(1 474 €, 2 882.89 лв./m2)

Цената е с включено ДДС
ЗАПАЗИ ОБЯВАТА

Местоположение: град Пловдив, Христо Смирненски, маг. 'Лекси'

Виж още имоти от Пловдив или още Тристайни Апартаменти в Пловдив
Допълнителни данни за имотите в района и сравнение с други райони: Търсене в АРХИВ 2013 - 2025 г.











Добави/редактирай
вид имот и район
*Средните цени са определени чрез медиана стойност.
Още обяви в imot.bg
КОНТАКТИ | SMS КОДОВЕ | СТАТИСТИКА | ПОМОЩ | ОБЩИ УСЛОВИЯ | РЕКЛАМА | ТОП ОФЕРТА | Въпроси и предложения към imot.bg
Резон Медия | Имоти | Автомобили | Работа | Новини | Обяви | Преводи и легализация 2002-2025 ® Copyright imot.bg
© imot.bg ползва и препоръчва хостинг услугите на Bulinfo.net
Следвайте ни в: