С удобната си локация в един от най-спокойните райони на София, жк. 'Модерно предградие', близостта до бул. Сливница и НГДЕК, визията на архитектурата, изборът на материали, контролирано изпълнение и бъдещата поддръжка го правят подходящия за вас избор на мечтаното собствено жилище или инвестиция.
Характеристики на жилището:
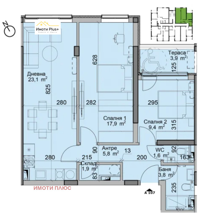
Етаж: 2 от 6;
Обща площ: 94,21 кв.м;
Чиста площ: 80,90 кв.м
Разпределение: Антре, дневна с трапезария, две спални, склад, баня с тоалетна и тераса.
Изложение: Север-изток.
Ето някои от основните предимства за вашата инвестиция:
Планирано завършване с Акт 16 - Началото 2028г.
Проектът включва общо 25 апартамента, всеки от които е проектиран с мисъл за удобството на бъдещите си обитатели. Просторните и светли помещения с функционални разпределения създават усещане за простор и позволяват оптимално използване на пространството.
Проектът е съобразен със съвременните изисквания за енергийна ефективност и екологична устойчивост. Жителите ще се насладят на уютна жилищна среда с ниски енергийни разходи и минимален отпечатък върху околната среда.
В новостроящата се сграда ви предлагаме едностайни, двустайни, тристайни апартаменти, както и подземни гаражи.
Жилищата ще бъдат завършени до шпакловка и замазка, което ви дава възможност да го персонализирате и декорирате според вашия вкус.
Възможност за разсрочена схема на плащане 30% - 30% -30% - 10% или друга по-удобна схема на плащане.
Плащанията се извършват на 4 вноски.
1 вноска на Предварителен договор
2 вноска на Акт 14
3 вноска на Акт 15
4 вноска на Акт 16
Има възможност за закупуване на гараж или паркомясто.
Агенцията ни може да ви съдейства за кредитно посредничество, ако сте предвидили плащания чрез ипотечен и/или потребителски кредит.
Виж всички обяви в imotiplus.bazar.bg или тук







