ПРОДАЖБА ДИРЕКТНО ОТ СТРОИТЕЛЯ!
Ул Юрий Венелин 20
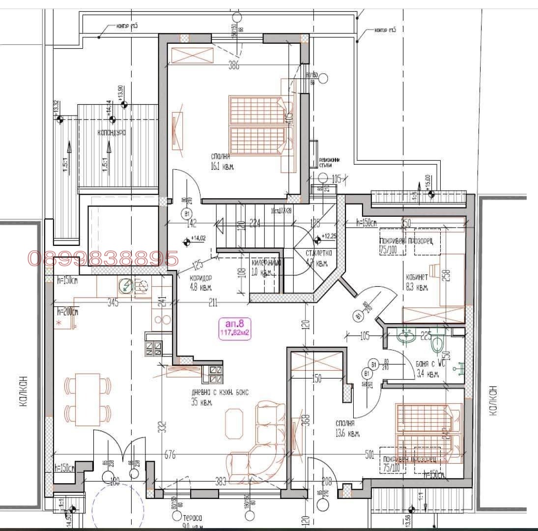
Апартамент N 8.
Голям функционален апартамент, разположен на 6-ти, последен, етаж с три спални, голям дневен тракт, две тераси. С малки промени във вътрешното разпределение апартамента е вече с две бани и килер.
Единствен апартамент на етажа!
Сградата е с АКТ 14. Разположена на метри от голям булевард, и все пак на тихо и спокойно място.
В непосредствена близост има множество магазини, заведения, детска градина 'Слънчо', училище 'Цар Симеон 1'.
На 50м от автобусна спирка.
Жилището е завършено по БДС с 4 камерна дограма, и блиндирана входна врата. Луксозно завършени общи части.
С площ от 148 кв.м. + мазе 7 кв.м
Към имота може да се закупи гараж (18-23 кв.м.).
Цена: 305 000 евро
За повече информация и огледи, моля обадете се на телефон 0899838895



