Translations in other languages:
All real estate ads published on imot.bg have been translated into English and published on the partner site
Получихте нова обява по филтър





Промяна на цена на наблюдавана обява


стара цена
нова цена
imot.bg – обяви за продажби и наеми на имоти
Сайт за имоти №1
Начало Публикуване Търсене Нови сгради Агенции Новини Кредити + Още... Моят имот
Продава 3-СТАЕН
град Варна, Кайсиева градина
136 500 €
266 970.80 лв.

(1 276 €, 2 495.64 лв./m2)
Цената е с включено ДДС
Публикувана в 14:01 на 17 септември, 2025 год.
Обявата е посетена 116 пъти.
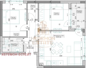
Площ:
107 m2
Етаж:
5-ти от 9
Строителство:
Тухла, Ще бъде въведен в експлоатация 2028 г.

Описание на имота:

Агенция за недвижими имоти HEGEMON ESTATE Ви предлага тристаен апартамент в новострояща се сграда в Кайсиева градина. Жилището ще се намира на ет. 5/9 с асансьор.

Разпределение: входно антре, всекидневна с кухненска част, 2 спални, една баня с тоалетна и отделно тоалетна, килер и тераса.

Налични са и други двустайни, тристайни и четиристайни апартаменти на различни етажи и изложения.

Сградата се отличава с елегантен облик и хармонична архитектура, която естествено се вписва в околното пространство. Състои се от 4 входа, разпределени така, че да осигурят удобство и функционалност за живущите. Жилищата в сградата са разнообразни от уютни апартаменти за млади хора до просторни домове с панорамни тераси, подходящи за семейства. Подземното ниво предлага гаражи и паркоместа, а в зоната около сградата са разположени допълнителни външни паркоместа и зелени площи за отдих.

Агенция HEGEMON ESTATE съдейства с професионална консултация, подготовка на нужните документи за закупуване на желани... Виж повече
Виж всички обяви на агенцията в hegemonestate.bazar.bg или тук.
Особености:
• Тухла
       


За контакти:  0877077541
Брокер: Мая Фелдманова

Офис: Бул. Владислав Варненчик 109, ет. 4
Телефон: 0877077541

Още оферти от брокера: продава | дава под наем | купува | наема
Изпрати запитване:
 
Вашето съобщение (до 1000 символа):
Вашето име: Вашия мобилен телефон:

Вашия E-mail:  
Изпрати Е-mail
Съгласявам се с общите условия и политики за защита на личните данни
Агенция: ХЕГЕМОН ЕСТЕЙТ

http://hegemonestate.imot.bg

Още оферти: продава | дава под наем | купува | наема

Адрес: област Варна, гр. Варна, Бул. Владислав Варненчик 109, ет. 4, офис 9
Тел.: 0877077539

Продава 3-СТАЕН
град Варна, Кайсиева градина
Обява: 1c175810688208211

136 500 €
266 970.80 лв.
(1 276 €, 2 495.64 лв./m2)

Цената е с включено ДДС
 

Местоположение: град Варна, Кайсиева градина

Допълнителни данни за имотите в района и сравнение с други райони: Търсене в АРХИВ 2013 - 2025 г.











Добави/редактирай
вид имот и район
*Средните цени са определени чрез медиана стойност.

Още обяви в imot.bg
КОНТАКТИ | SMS КОДОВЕ | СТАТИСТИКА | ПОМОЩ | ОБЩИ УСЛОВИЯ | РЕКЛАМА | ТОП ОФЕРТА | Въпроси и предложения към imot.bg
Резон Медия | Имоти | Автомобили | Работа | Новини | Обяви | Преводи и легализация 2002-2025 ® Copyright imot.bg
Следвайте ни в: