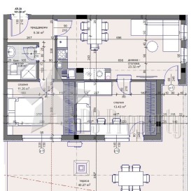
Характеристики: Състои се от входно антре, дневна с трапезария и кухненски кът, две спални, баня с тоалетна и панорамна слънчева тераса.
Локация: Била 1
Изложение: Юг
Непосредствена близост се намира училище, детска градина, парк, спирка на градски транспорт, магазини и ресторанти!
Обща площ: 132 кв.м.
Агенция PS Property предлага БЕЗПЛАТНА консултация и съдействие при ипотечен или потребителски кредит, като услугата не е обвързана с покупка на имот.
Виж всички обяви в psproperty.bazar.bg или тук







