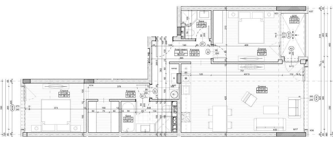
Титан Пропъртис с радост предлага на Вашето внимание тристаен апартамент за продажба в ж.к. Кръстова вада, София. С обща площ 89,9 кв.м., жилището е на 3-ти от 4 етажна новострояща се сграда с издаден Акт 14. Сградата ще бъде завършена, с издаден Акт 16, до месец юни 2026 г. Изложението запад, север и юг гарантира отлична дневна светлина.
Разпределението включва антре, дневна с трапезария и кухненски бокс, две спални, ената от които е със собствена баня с тоалетна и гардеробна, втора баня с тоалетна, килер, лоджия. Към имота има маза с площ от 2,93 кв.м. Апартаментът се предлага на шпакловка и замазка, което дава възможност за персонализирано обзавеждане според Вашите предпочитания.
В близост до имота ще намерите:
- Детски ясли и градини: ДЕТЕгледане на 410 метра
- Подготвително училище: Частна детска градина и ясла 'Растеж' / Growers Day Care на 212 метра
- Банкомат: Банкомат Postbank на 365 метра
- Болница: ЗИЦ Медикъл Караджъ - лечение в чужбина на 431 метра
- Спирка: УЛ. ИВАН АНДОНОВ на 413 метра
- Автобусна спирка: УЛ. АСЕН ЙОРДАНОВ на 486 метра
'С нас, вашето търсене на имот завършва с усмивка.'
За оглед на това и други атрактивни предложения, не се колебайте да ни потърсите на посочения телефон или да ни изпратите данните си чрез формата за запитване на сайта.
Реф. номер: 2097410.
Виж всички обяви в titan_properties.bazar.bg или тук







