Цена: 2 500 евро без ДДС
📍 Локация: Малка жилищна сграда, в спокоен район, кв. Бели брези
📑 Сграда пред АКТ 14, очакван АКТ 16 до края на 2026 г.
✨ Характеристики на имота:
- Етаж: 3-ти (втори жилищен) от общо 6 етажа
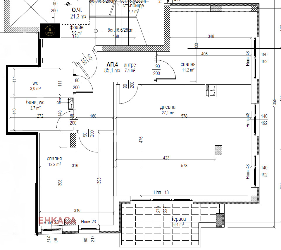
- Застроена площ: 85,10 кв.м.
- Изложение: Югоизток, светъл и топъл през целия ден.
- Отопление: ТЕЦ
- Разпределение: Антре, дневна с кухненски бокс, две спални, две бани с тоалетни и голяма тераса.
🚗 Допълнително удобство: Възможност за закупуване на подземен гараж
📅 Огледи с предварителна уговорка.
📞 За повече информация и огледи свържете се с нас - 0876392316!
Виж всички обяви в encasaproperties.bazar.bg или тук







