🏡 'ГОЛД ИМОТИ' има удоволствието да Ви представи нов проект в кв. Христо Смирненски!
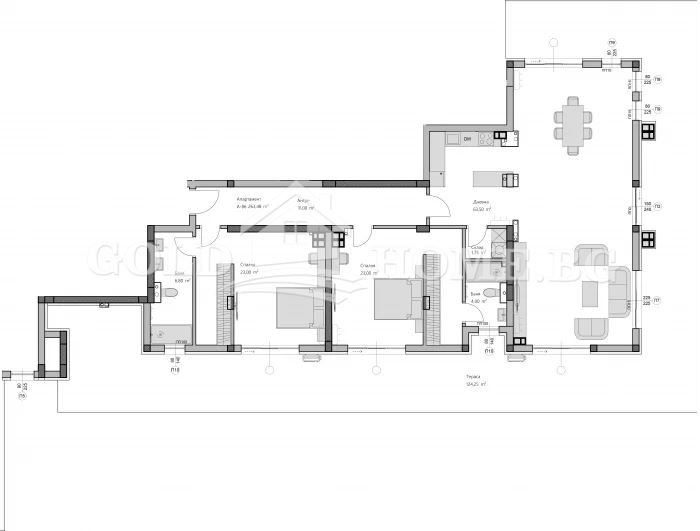
🎯 Предлагаме избор от двустайни и тристайни апартаменти, както и един четиристаен апартамент.
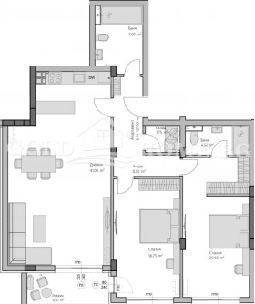
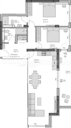
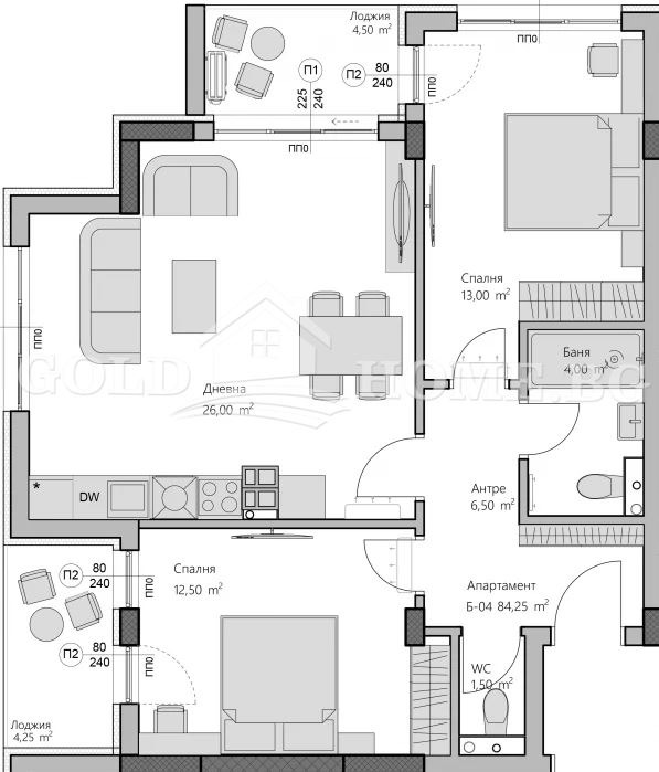
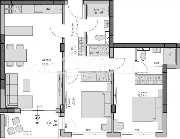
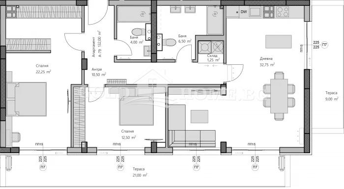
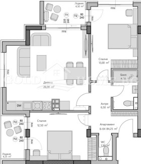
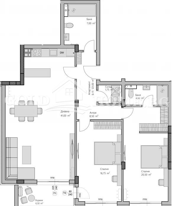
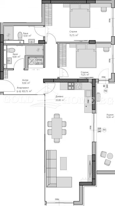
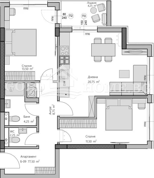
- Тристайните жилища се състоят от: входно антре, всекидневна с кухненски бокс и трапезария, две спални, две бани с тоалетна, склад и тераса.
Можем да предложим различни модули:
- 91,53 кв.м. - 134 550 евро;
- 95,96 кв.м. - 141 061 евро;
- 99,51 кв.м. - 146 280 евро;
- 122,54 кв.м. - 180 134 евро;
- 129,29 кв.м. - 190 056 евро;
- 129,87 кв.м. - 190 909 евро;
- 142,91 кв.м. - 210 078 евро;
- 143,79 кв.м. - 211 371 евро;
- 156,21 кв.м. - 229 629 евро;
- 169,42 кв.м. - 249 047 евро;
- 292,12 кв.м. - 429 416 евро;
📍 Характеристики и предимства:
- Най-висок клас алуминиева дограма.
- Френски прозорци - максимална естествена светлина и усещане за простор.
- Блиндирани входни врати.
- Изолация от каменна вата - отлична енергийна ефективност, звукоизолация и устойчивост във времето.
- Видеонаблюдение - спокойствие и сигурност за всички обитатели.
- Видео домофон - видео връзка осигуряваща удобство и допълнителна сигурност.
- Фасадата е проектирана с внимание към детайла, съчетавайки съвременен дизайн и висококачествени материали.
- Озеленяването около сградите създава усещане за баланс между динамиката на града и спокойствието на природата.
➡️Проектът се реализира от доказан строител с редица завършени проекти.
📍Схема на плащане:
Начина на плащане е гъвкам и е съобразен с възможностите на клиента.
📍Пусков срок:
- Строителството на сграда е започнато в края на 2024г.
- АКТ 16 се очаква: средата на 2027г.
🚗 ПАРКИРАНЕ
- Има възможност за закупуване на външни паркоместа и гаражи.
🎯 Отлична локация:
- Намира си на 7мин пеша от магазин Lidl, на 3 мин от аптека Гален, на 8 мин от Гребна база, на 20мин от УМБАЛ ,,Каспела' и на 10 мин от Училище - СУ ,,Св. св. Кирил и Методий'.
- Локацията осигурява бърз и лесен достъп до основни пътни артерии, търговски зони, образователни институции и зелени площи.
➡️ 'ГОЛД ИМОТИ' предлага безплатно професионално кредитно посредничество чрез Credit Center:
- Изготвяне на оферти от водещи банки
- Най-добри условия, съобразени с вашия профил
- Без излишни разходи и време за посещения на различни банкови клонове
➡️ Не пропускайте! За повече информация и огледи, свържете се с нас: 0894 274 966, 0896 957 313. Вашият нов дом ви очаква!
Виж всички обяви в gold_imoti.bazar.bg или тук







