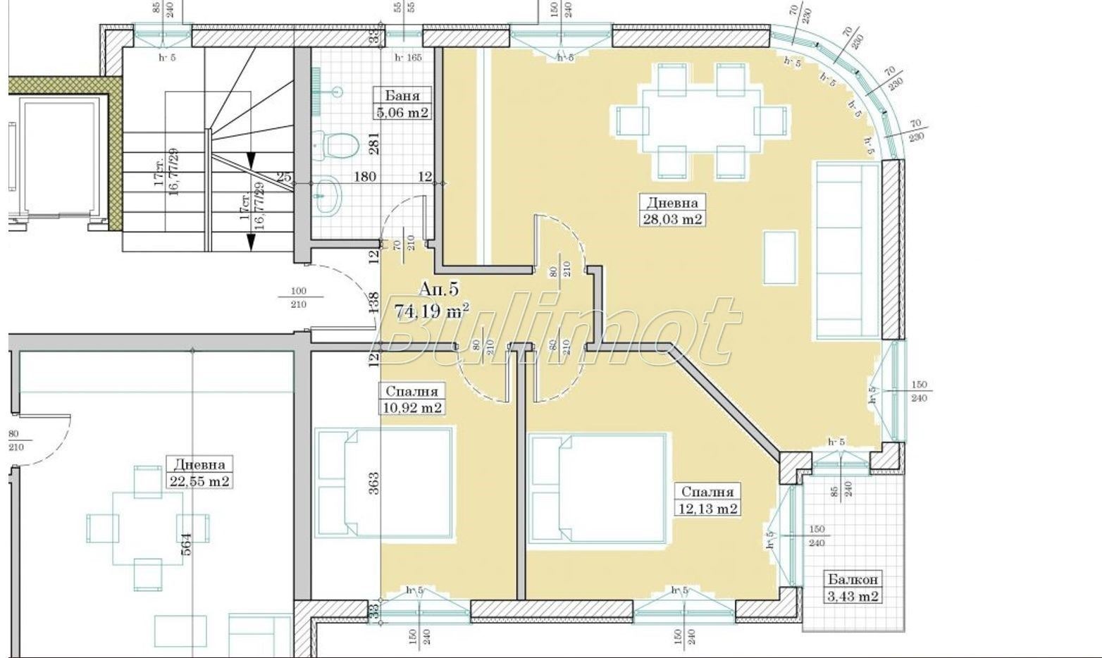
🗺️ Разпределение:
- 🛋️ Просторна дневна с кухненска зона и място за трапезария
- 🛏️ Две самостоятелни спални
- 🛁 Баня с тоалет
- 🌤️ Тераса с приятен изглед
- 🧺 Складово/нишо пространство за пералня
🌟 Предимства на имота:
- 🌞 Отлична осветеност и функционално разпределение
- 🧱 Качествено ново строителство и модерни общи части
- 🪟 Енергийно ефективна дограма и добра шумоизолация
- 🚗 Удобно паркиране в района
- 🔑 Подходящ за незабавно ползване или отдаване под наем
- 🧭 Добра свързаност с центъра, Св. Св. Константин и Елена и главни пътни артерии
✅ Подходящ за:
- 👨👩👧👦 Семейство, търсещо спокойствие и комфорт
- 💼 Инвеститор, търсещ стабилна доходност и ликвидност
Квартал Виница е спокоен и зелен район с ниско застрояване, свеж въздух и приятна жилищна среда.
В близост има магазини, училище, детска градина, аптеки и удобен градски транспорт, а морето е на минути с автомобил.
🛡️🤝 За оглед и повече информация, свържете се с Ивелина Йорданова на 0897885152 📞
Виж всички обяви в bulimot.bazar.bg или тук
        
      
        
        
            
            






