В близост са разположени търговски обекти, детски градини, медицински център, болница, спирки на градски транспорт.
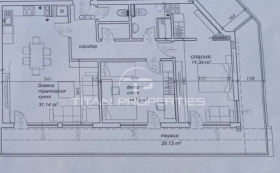
Апартаментът е ситуиран на 5-ти жилищен етаж и разполага с площ от 142 кв.м., разгърната по следния практичен начин: входно антре, килер, дневна с трапезария и кухненски бокс, две спални, дрешник, баня с тоалетна, тоалетна, тераса.
Отоплението е електрическо
Жилището се предлага на шпакловка и замазка, за да може Вашето въображение да го превърне в мечтания за Вас нов ДОМ!
За оглед на това и други атрактивни предложения, не се колебайте да ни потърсите на посочения телефон или да ни изпратите данните си чрез формата за запитване на сайта.
Референтен номер: 1110
Виж всички обяви в titanplovdiv.bazar.bg или тук
        
       
         
         
             
            






