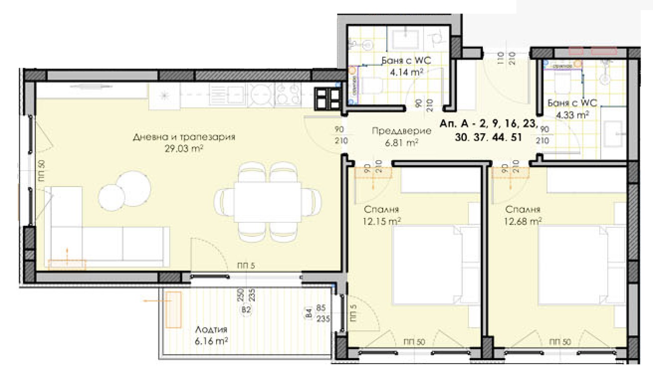
➡Апартаментът се състои от преддверие, 2 спални, 2 бани с тоалетна, дневна с трапезария и кухненски бокс, тераса, избено помещение и е с обща площ от 102,51 кв.м.
В сградата се предлагат разнообразни по площ едностайни, двустайни, тристайни и четиристайни жилища.
✔Локация: Сградата е в непосредствена близост до магазин Лидл на бул. Северен
✔Паркинг: Паркирането е осигурено на 100% - гаражи и паркоместа.
✔Апартаментите се издават: шпакловка и замазка, изградена ВиК, ел. инсталация с монтирани ключове и контакти и ел. табла, входни блиндирани врати.
➡Alpha Real Estate, специализиран посредник на водещите строителни фирми, член на Националната браншова организация НСНИ. За още предложения ново строителство в гр. Пловдив посетете нашия сайт: https://alphaestate.bg
Реф. 7135
Виж всички обяви в alphaestate.bazar.bg или тук







