От апартаментите в комплекса се открива невероятна, нескриваема морска панорама, отвеждаща погледа чак до нос Калиакра. Концепция е насочена към комплекс, предлагащ всички удобства, покриващи нуждите на едно домакинство, сигурност и комфорт, зеленина, извън забързаната градска среда.
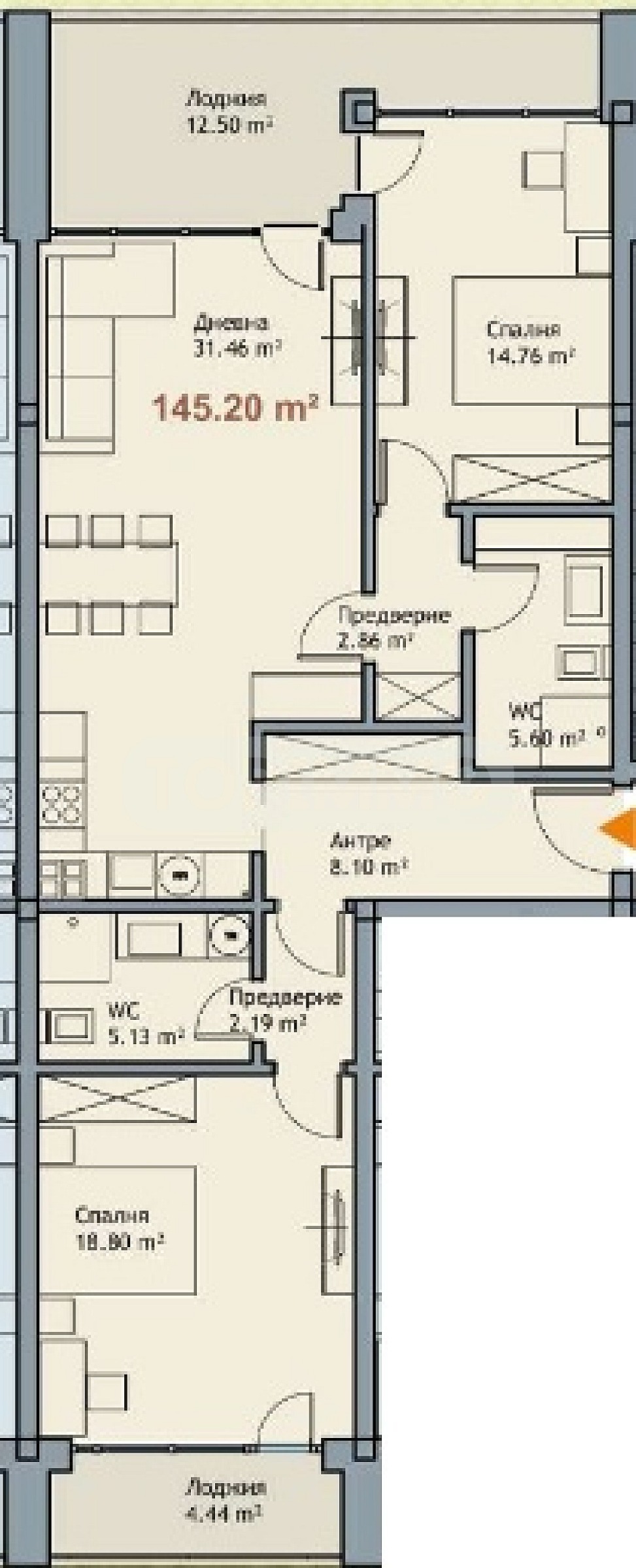
Апартаментът е разположен на трети етаж и се състои от входно антре, дневна, 2 спални, 2 лоджии, 2 бани с тоалетна.
За комплекса:
Комплексьт ще разполага с открит басейн, зелени пространства и модерна архитектура, създаваща приятна и спокойна среда за живот. Апартаментите са проектирани с комфортни и функционални разпределения. Осигурени са паркоместа за всеки апартамент. Обградена от зеленина, сградата притежава впечатляваща гледка на изток към морето
Степен на завършеност:
Апартаментите се издават в степен на завършеност БДС, подове на замазка, стени на мазилка, ВиК на тапи, монтирани ключове и контакти, слаботокова инсталация, тръбна разводка за климатизация, входна врата. На всеки клиент може да се предостави 3D идеен интериорен проект напълно безплатно.
Има възможност и за завършване до ключ, с материали по избор на клиента, срещу допълнително заплащане. Съдействаме с консултация от дизайнер, изготвяне на технически проект и авторски контрол.
Предимства:
Локация: осигуряваща спокойствие, нескриваема морска панорама и близост до града;
Затворен комплекс гарантиращ сигурност и комфорт;
Собствена паркова зона и богато озеленяване;
Целогодишен басейн:
Smart системи: за управление на достъпа в комплекса и видеонаблюдение;
Паркоместа;
Утвърден инвеститор и строителна фирма;
Висококачествени материали и изпълнение;
Професионално управление и поддръжка;
Подходящ за постоянно живеене и целогодишно отдаване под наем.
Предлагат се няколко схеми за плащане.
Налични са за продажба и други апартаменти с различна квадратура и цени, за повече информация свържете се с нас! Референтен номер: AP-4243
Виж всички обяви в topimmo.bazar.bg или тук







