Предимства на имота:
- ЛОКАЦИЯ: Сградата се намира в сърцето на кв. Кършияка, точно зад хотел 'Санкт Петербург'.
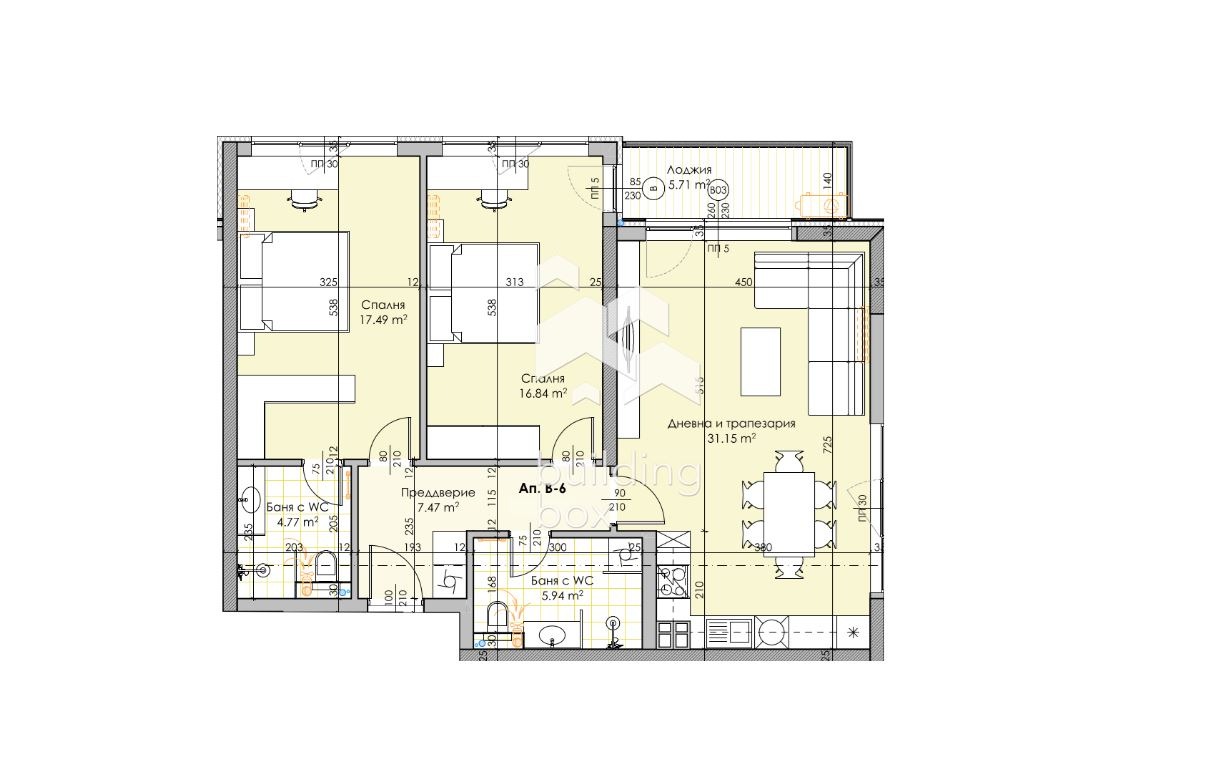
- РАЗПРЕДЕЛЕНИЕ: Просторна всекидневна с кухненски бокс, две големи спални, антре, две бани с тоалетна и две тераси.
- ПЛОЩ: Апартаментът е с чиста площ над 100 кв.м.
- ЕТАЖНОСТ: 2-ри етаж от общо 11.
- ОТОПЛЕНИЕ: Електричество.
- ИЗЛОЖЕНИЕ: СЕВЕР/ИЗТОК Благодарение на това, денят ви ще започва с естествена светлина и няма да имате директно нагряване на имота в горещите летни дни.
- ПАРКИРАНЕ: Възможност за закупуване на паркомясто.
- СГРАДА: Модерна сграда, проектирана от инвеститор с опит и история в гр. Пловдив.
- ЕТАП НА СТРОИТЕЛСТВО: Сградата е с получен АКТ 14, с поставена фасада, и се очаква да бъде завършена до края на 2025г.
БИЛДИНГ БОКС предоставя безплатна консултация и съдействие при финансиране на избрания от Вас имот.
Оферта 23372
Виж всички обяви в buildingbox.bazar.bg или тук







