Кв. Галата е единствения квартал с LED осветление, разполага с множество детски площадки, ОУ 'Капитан Петко Войвода', детска градина. На 5 минути от плажа и парка на кв. Аспарухово, и на 15 минути от центъра на гр. Варна. Непосредствено до комплекса, има разположени и спирки на градски транспорт.
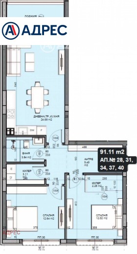
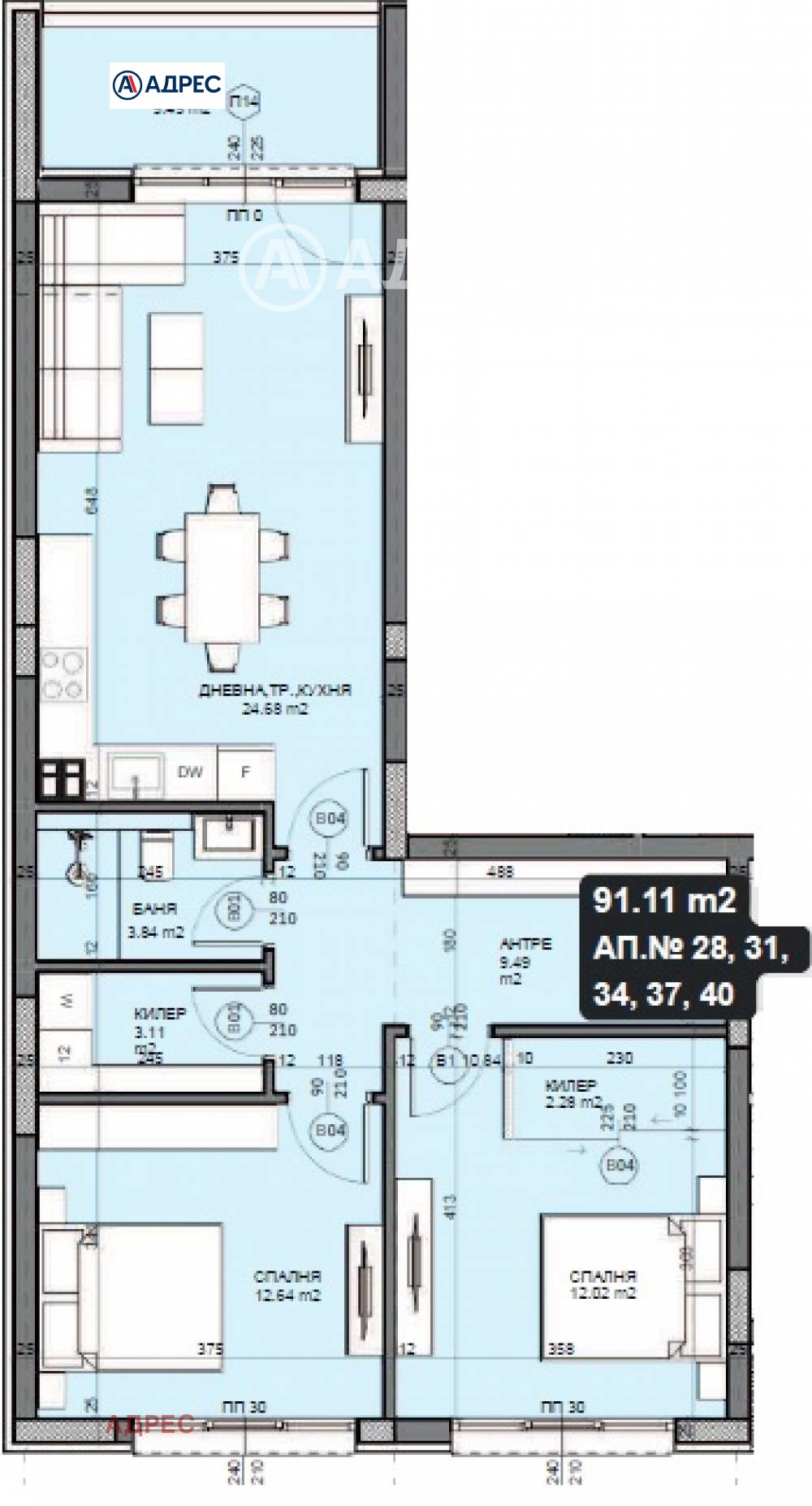
Комплексът е предвиден да бъде построен на пет етапа, като началото на първия етап, се очаква да бъде даден през септември 2025 г. Жилищата в комплекса, ще са много функционални, като клиентите имат възможност да избират между, 1-стайни, 2-стайни, 3-стайни и 4-стайни апартаменти, спрямо техните нужди. Завършване на етап едно, е предвиден за месец февруари 2028 г.
Богато озеленен комплекс,
Хранителен магазин,
Детска занималня,
Велоалеи и алеи за разходка,
Детски площадки и спортни игрища,
Зони с BBQ за срещи с приятели,
Кафе-сладкарница, ресторант и скай-бар,
Спортен център с плувен закрит басейн, фитнес и зали за събития,
Дентален център,
Салон за красота,
Подземни паркинги с топла връзка и асансьор до всяка сграда,
Обади се сега и цитирай този код 662895
Виж всички обяви в adress.bazar.bg или тук







