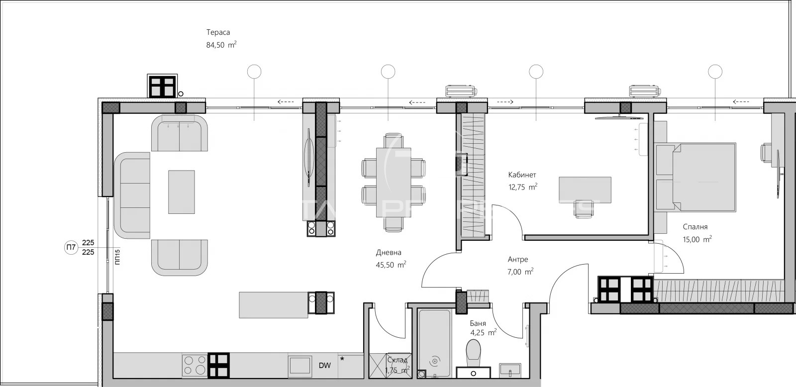
Апартаментът А-88 е ситуиран на 9-ти жилищен етаж и разполага с площ от 169 кв.м., със следното практично разпределение: Входно антре, хол с кухненски бокс, две спални склад, една баня с тоалетна, тераса. Жилището е със система 'умен дом' комфорт и управление от разстояние. Височина на таваните 2.70 м, осигуряваща простор и светлина.
Сградата разполага с високоскоростни асансьори.
Има надземни паркоместа на атрактивна цена от 15 000 , с прекарана инсталация за зареждане на електромобили (мощност 10 kW, трифазен ток) Избор от подземни паркоместа и гаражи.
Акт 14 очакван в края на 2025 г. Акт 16 предвиден за 2026 г. Етап на строителство: завършена четвърта плоча.
Идеален избор за семейно жилище или инвестиция с висока възвръщаемост!
За оглед на това и други атрактивни предложения, не се колебайте да ни потърсите на посочения телефон или да ни изпратите данните си чрез формата за запитване на сайта.
Референтен номер: 1091
Виж всички обяви в titanplovdiv.bazar.bg или тук







