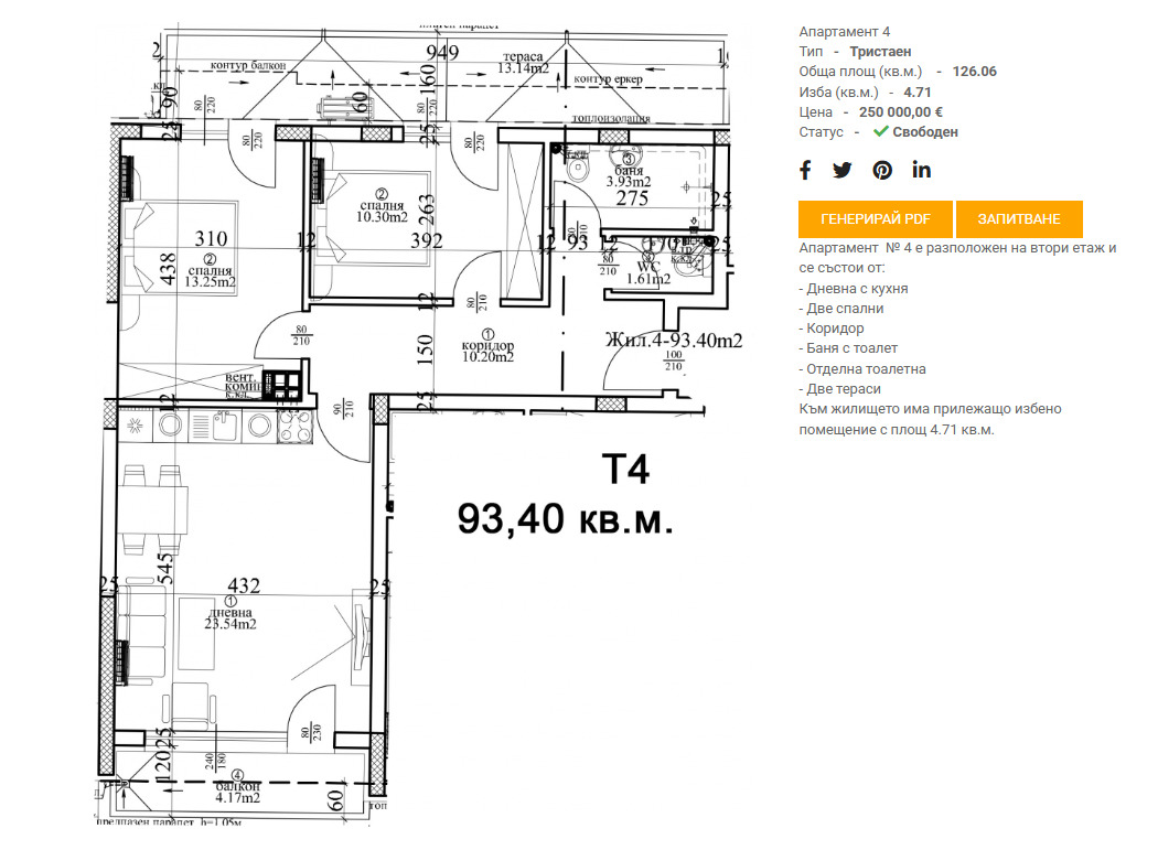
Предлагаме Ви просторен тристаен апартамент с площ от 126 кв.м, разположен на втори етаж в сграда с Акт 16, намираща се в един от най-предпочитаните райони на града Централна поща.
✨ Характеристики:
Етаж: 2
Разпределение:
Просторен дневен тракт с кухненска зона и трапезария
Две самостоятелни спални
Баня с тоалетна
Балкон
📍 Локация:
Апартаментът се намира в отлична централна локация, в близост до Централна поща, с бърз достъп до магазини, училища, спирки на градски транспорт, административни сгради и заведения.
💰 Цена: 250 000
📱 Телефон за контакт: Стефка Петрова 0882466606
Виж всички обяви в bulgaria-estate.bazar.bg или тук







