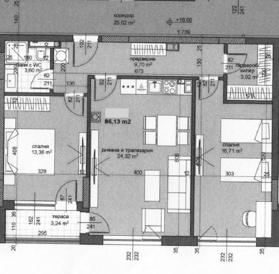
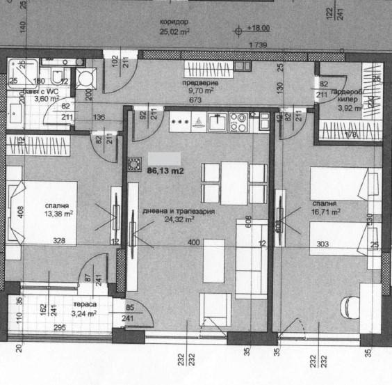
Квадратура: 100 кв.м
Етаж: 6 от 12
Изложение: Изток,Юг
Разпределение: вхоно антре, дневна с трапезария, две спални, гардеробна, баня с тоалетна, тераса
Отопление: електричество
Просторно жилище с ново строителство от 2025 г., предлагащо югоизточно изложение и обширни гледки. Дневна с трапезария и гардеробно помещение се допълват от две спални и тераса за отдих. Отопление на ток, качествени материали и удобна локация до спирки създават приятна атмосфера.
В близост до имота ще намерите:
- Училище: Средно училище 'Димитър Матевски
- Подготвително училище: ДГ 'Таня Савичева
- Автобусна спирка: Форум 'Тракия
Информация за горепосочения имот, може да получите чрез формата на запитване или чрез директна връзка с нас на посочения телефон, като ще Ви е необходим следният референтен номер: 2093222.
Виж всички обяви в revolutionpldv.bazar.bg или тук
        
       
         
         
         
         
         
         
             
             
             
             
             
            






