Предлагам за продажба просторен тристаен апартамент със застроена площ 91,6 м² разположен на трети жилищен етаж в бъдеща сграда, позиционирана в най-предпочитаната зона на кв. Христо Смирненски, в близост до:
Гребен канал
УМБАЛ Св. Георги
МОЛ Пловдив
Фитнеси
Училища и детски градини
Хипермаркет Лекси / Т маркет
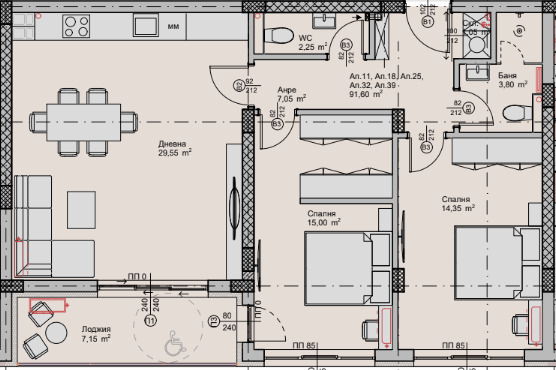
📌 Разпределение на жилището:
Просторна дневна с трапезария и кухненски бокс 29,55 м²
Спалня 15 м²
Втора самостоятелна спалня 14,35 м²
Баня с тоалетна 3,8 м²
Тоалетна 2,25 м²
Антре 7,05 м²
Лоджия 7,15 м²
✅ Южно изложение, осигуряващо топлина и светлина през целия ден
✅ Етаж 3 от 7, удобна и предпочитана позиция в сградата
✅ Среден апартамент, без загуба на топлина през студените месеци
✅ Възможност за покупка на гараж или паркомясто
✅ Без комисионна от страна на купувача
✅ Подходящ за закупуване с банково финансиране
🏗️ Сградата е пред разрешение за строеж, с планирано завършване и Акт 16 през 2028 г.
🔨 Изпълнява се от доказан строител с десетки успешно завършени обекти в Пловдив, използващ висококачествени материали и съвременни строителни технологии
💼 Имот с отличен потенциал както за собствено ползване, така и за инвестиция с висока доходност
📞 Свържете се с мен за повече информация - 0897 080 399 / Ангел Катушев
Виж всички обяви в hhproperties.bazar.bg или тук
        
      
        
        
        
            
            
            






