БИЛДИНГ БОКС предлага за продажба ТРИСТАЕН апартамент в новострояща се сграда в кв. 'Изгрев'
ЛОКАЦИЯ: Сградата се намира кв. 'Изгрев'. В близост са големи хипермаркети, медицински центрове, училища, детски градини, поликлиники. Лесен достъп до градски транспорт.
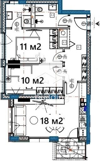
РАЗПРЕДЕЛЕНИЕ: Всекидневна с кухненски бокс - 18 кв.м., две спални - 11 кв.м. и 10 кв.м., 2 бани с тоалетна, складово помещение и входно антре.
ЕТАЖ: Етаж 2 от общо 10
ИЗЛОЖЕНИЕ: Югозапад
ОТОПЛЕНИЕ: Електричество.
ПАРКИРАНЕ: Към имота има възможност да се закупят открити и закрити паркоместа.
СТРОИТЕЛСТВО: Тухла.
Билдинг Бокс предоставя безплатна консултация и съдействие при финансиране на избрания от Вас имот.
Оферта 22745
Виж всички обяви в buildingbox.bazar.bg или тук







