Translations in other languages:
All real estate ads published on imot.bg have been translated into English and published on the partner site
Получихте нова обява по филтър





Промяна на цена на наблюдавана обява


стара цена
нова цена
imot.bg – обяви за продажби и наеми на имоти
Сайт за имоти №1
Translations in other languages:
All real estate ads published on imot.bg have been translated into English and published on the partner site
ДОБАВИ ОБЯВА Редакция на обява
Начало Публикуване Търсене Нови сгради Агенции Новини Кредити + Още... Моят имот
Продава 3-СТАЕН
град Варна, Гръцка махала
442 600 €
865 650.36 лв.

(3 598 €, 7 037.08 лв./m2)
Не се начислява ДДС
История на цената
Коригирана в 12:18 на 28 октомври, 2025 год.
Обявата е посетена 735 пъти.
Площ:
123 m2
Етаж:
2-ри от 6
Строителство:
Тухла, 2025 г.

Описание на имота:


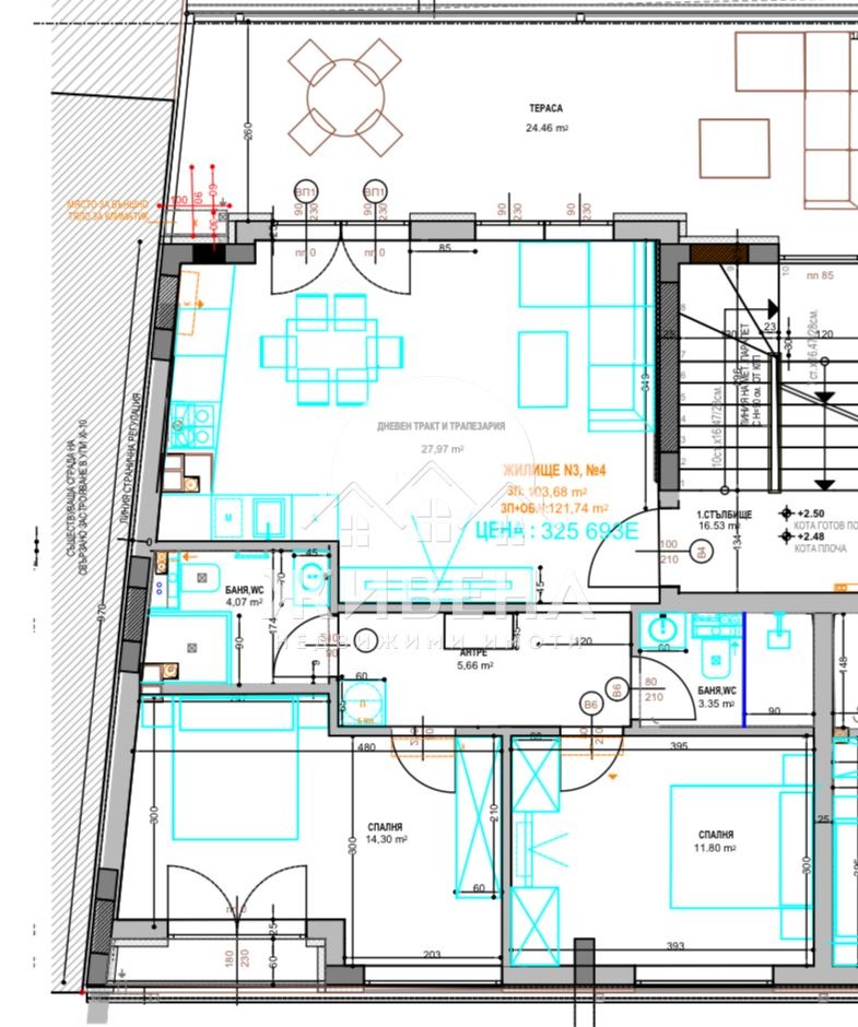
Агенция Живена продава тристаен апартамент с площ 122 кв.м, разположен на етаж 2-ри в 5-етажна сграда в строеж в района на Операта и Шадраваните. Имотът е със следното разпределение: просторна всекидневна (28 кв.м), две спални (14.3 кв.м и 12 кв.м), две бани с тоалетна (4 кв.м и 3.5 кв.м), тераса (25 кв.м). Малка бутикова пететажна сграда с асансьор, която ще бъде изградена с висококачествени материали, красив дизайн, отговарящ на локацията. Апартаментът ще бъде издаден в степен на завършеност по БДС. Към жилището може да се закупи парко място на цена 45 000 евро. Цената на обявения имот при 50% първоначално плащане е 447 800 евро и при плащане на първоначална вноска - 70%, цената е 442 600 евро. Сградата е в строеж, като очакван Акт 14 през април 2026г., завършване се предвижда началото на 2027 г. Сградата е разположена в идеалния център на град Варна, на метри от Операта, Морска гара и централния плаж, автобусни спирки, детски площадки, банкови учреждения и други. В сградата се предлага и още един тристаен апартамент на ет.5 с площ 113 кв.м на цена 464 500 евро, като и едно търговско помещение на партерен етаж с директен достъп от улицата с площ 90 кв.м на цена 342 800 евро. Агенция Живена извършва необходимите проверки на имота, който сте избрали, организира всички етапи на сделката до нейното финализиране. Оказваме съдействие за отпускане на банков кредит. Оферта 7189
Виж всички обяви в jivenavarna.bazar.bg или тук
Особености
Тухла
За контакт:
0885885272
Брокер:
Радостина Иванова
0885885272, 052580170
Офис: ЖИВЕНА
Още оферти от брокера: Продава | Дава под наем | Купува | Наема
Агенция:
ЖИВЕНА
052580170; 0889306894
ЖИВЕНА logo
Медал за прослужено време
В imot.bg от 2019 г.
jivenavarna.imot.bg
Адрес:
област Варна, гр. Варна, ул. Георги Бенковски 12
http://www.jivena.bg
ИЗПРАТИ ЗАПИТВАНЕ
ИЗПРАТИ ЗАПИТВАНЕТО

Продава 3-СТАЕН
град Варна, Гръцка махала
Обява: 1c174903317100695

442 600 €
865 650.36 лв.
История на цената
(3 598 €, 7 037.08 лв./m2)

Не се начислява ДДС
ЗАПАЗИ ОБЯВАТА

Местоположение: град Варна, Гръцка махала

Виж още имоти от Варна или още Тристайни Апартаменти във Варна
Допълнителни данни за имотите в района и сравнение с други райони: Търсене в АРХИВ 2013 - 2025 г.











Добави/редактирай
вид имот и район
*Средните цени са определени чрез медиана стойност.
Още обяви в imot.bg
КОНТАКТИ | SMS КОДОВЕ | СТАТИСТИКА | ПОМОЩ | ОБЩИ УСЛОВИЯ | РЕКЛАМА | ТОП ОФЕРТА | Въпроси и предложения към imot.bg
Резон Медия | Имоти | Автомобили | Работа | Новини | Обяви | Преводи и легализация 2002-2025 ® Copyright imot.bg
© imot.bg ползва и препоръчва хостинг услугите на Bulinfo.net
Следвайте ни в: