ОТЛИЧНА ЛОКАЦИЯ! Сградата е на тиха улица до нова детска градина, близо е и до НСА и спирки на автобуси 94, 102, 280 и 805 и бъдещата метростанция НСА.
БУЛ ИМОТ София Ви предлага тристаен апартамент с перфектно изложение изток-юг-запад в новострояща се сграда, подходящ за живеене или инвестиция. Малинова долина е от малкото квартали на София с градоустройствен план, ниско застрояване (до 4 етажа), достатъчни отстояния и голям процент озеленяване във всеки имот. Сградата е на кота 0. Удостоверение за въвеждане в експлоатация - 2026 г.
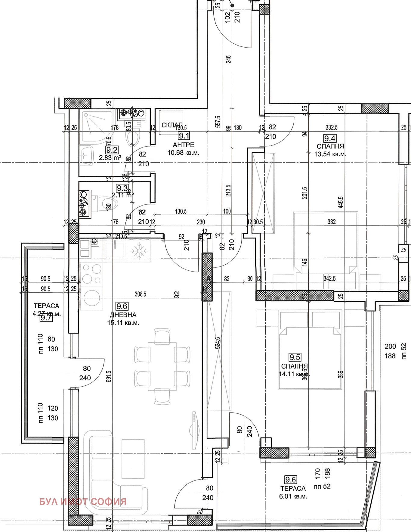
🔹Обща застроена площ: 111 м²
🔹Чиста жилищна площ: 96.51 м²
🔹Етаж: 2-ри от 4
🔹Изложение: Изток/юг/запад
🔹Отоплението е на газ + изводи за климатици във всяка стая
🔹Френски прозорци, които изпълват пространството със светлина
Разпределение:
Всекидневна с кухненски бокс
2 спални
1 антре със склад
1 баня с тоалетна
Отделна тоалетна
2 балкона
Непреходен
📞 За повече информация и огледи се свържете с нас!
Отговорен консултант за имота: Стоян Петров
Оферта: 14164
БУЛ ИМОТ София е на Ваше разположение за съдействие при договаряне на преференциални условия за получаване на жилищен кредит за покупка на имота в различни банки.
Предлагаме Ви и възможността при закупуване на имота да получите различни отлични отстъпки на висококачествени материали и обзавеждане от наши партньори с отлична репутация, които са Ви необходими, за да завършите Вашият мечтан дом 'До ключ'.
Виж всички обяви в bulimotsofia.bazar.bg или тук







