Комплексът се състои от 3 нискоетажни сгради, построени с иновативни енергоспестяващи технологии, разполага с охраняем двор без автомобили, парк и панорамна гледка към Витоша.
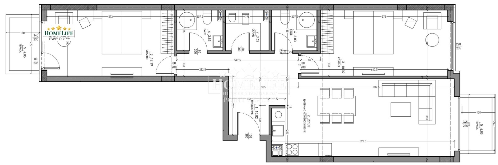
Апартаментът е с площ от 131 кв.м., разпределени в антре, дневна с кухненски бокс и трапезария, две спални, две тераси, две бани с тоалетна и склад/мокро помещение.
Разположен е на етаж 4 етаж от 4, изложение изток/запад, френски прозорци в стаите. Подово отопление с изградена инсталация за термопомпа.
Възможност за закупуване на подземно паркомясто или гараж. Сградите са на акт 14 и заверено удостоверение по чл. 181 от ЗУТ.
В комплекса предлагаме двустайни, тристайни и многостайни апартаменти, както и мезонети със собствен двор.
Виж всички обяви в homelifebulgaria.bazar.bg или тук







