Translations in other languages:
All real estate ads published on imot.bg have been translated into English and published on the partner site
Получихте нова обява по филтър





Промяна на цена на наблюдавана обява


стара цена
нова цена
imot.bg – обяви за продажби и наеми на имоти
Сайт за имоти №1
Translations in other languages:
All real estate ads published on imot.bg have been translated into English and published on the partner site
ДОБАВИ ОБЯВА Редакция на обява
Начало Публикуване Търсене Нови сгради Агенции Новини Кредити + Още... Моят имот
Продава 3-СТАЕН
град София, Бояна
365 592 €
715 035.80 лв.

(2 374 €, 4 643.14 лв./m2)
Цената е с включено ДДС
История на цената
Коригирана в 11:55 на 20 октомври, 2025 год.
Обявата е посетена 165 пъти.
Площ:
154 m2
Етаж:
3-ти от 5
Газ:
ДА
ТEЦ:
Лок.отопл.
Строителство:
Тухла, Ще бъде въведен в експлоатация 2025 г.

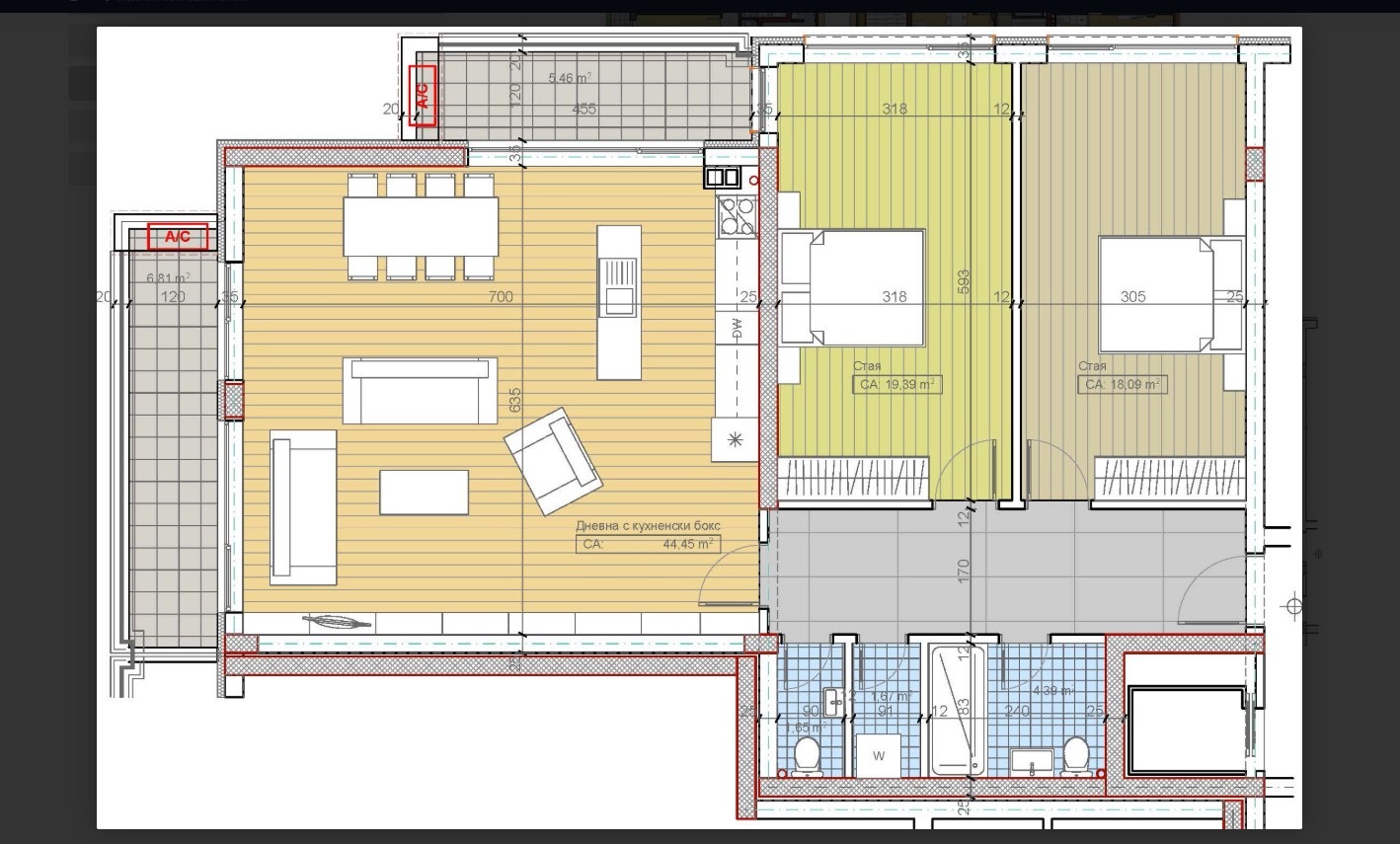
Описание на имота:


БЕЗ КОМИСИОННА ОТ КУПУВАЧА!!! Агенция Скала Ди предлага за продажба ОТЛИЧЕН тристаен апартамент в новострояща се модерна и луксозна сграда в м.Гърдова глава близо до бул. Никола Петков и бул.Цар Борис 3.Състои се от две секции, всяка със самостоятелен вход. Сградата ще бъде газифицирана. Близо е до детска градина, училище, бул.Цар Борис, магазини и други. Има отлична комуникация -трамваи 5 и 11 и автобуси 260 и 111, много тихо и спокойно място с чист въздух. Има свободни двустайни и тристайни апартаменти в сградата. Предлаганият апартамент е на трети етаж и е с изложение юг/запад. Разпределението е следното: коридор, хол с кухненски бокс и излаз на тераси, две спални, баня с тоалетна, отделно тоалетна, склад. Чиста жилищна площ 129.59кв.м. Складът е със светла площ от 4.68кв.м и е на цена 1050Е/ кв.м. Етап на строителство -пред Акт 15. . Включено ДДС в цената. Същият апартамент го има на втори и четвърти етаж.Пусков срок 12.2025г
Виж всички обяви в scaladi.bazar.bg или тук
Особености
Тухла
За контакт:
0884208127
Брокер:
Румяна Коларова
0884208127, 0888199997
Още оферти от брокера: Продава | Дава под наем | Купува | Наема
Агенция:
АГЕНЦИЯ СКАЛА ДИ-НЕДВИЖИМИ ИМОТИ ЕООД
0888199997
АГЕНЦИЯ СКАЛА ДИ-НЕДВИЖИМИ ИМОТИ ЕООД logo
Медал за прослужено време
В imot.bg от 2004 г.
scaladi.imot.bg
Адрес:
област София, гр. София, гр. София, бул.Витоша 60, ет. 1
http://www.scaladi.com
ИЗПРАТИ ЗАПИТВАНЕ
ИЗПРАТИ ЗАПИТВАНЕТО

Продава 3-СТАЕН
град София, Бояна
Обява: 1c174791865768575

365 592 €
715 035.80 лв.
История на цената
(2 374 €, 4 643.14 лв./m2)

Цената е с включено ДДС
ЗАПАЗИ ОБЯВАТА

Местоположение: град София, Бояна

Виж още имоти от София или още Тристайни Апартаменти в София
Допълнителни данни за имотите в района и сравнение с други райони: Търсене в АРХИВ 2013 - 2025 г.











Добави/редактирай
вид имот и район
*Средните цени са определени чрез медиана стойност.
Още обяви в imot.bg
КОНТАКТИ | SMS КОДОВЕ | СТАТИСТИКА | ПОМОЩ | ОБЩИ УСЛОВИЯ | РЕКЛАМА | ТОП ОФЕРТА | Въпроси и предложения към imot.bg
Резон Медия | Имоти | Автомобили | Работа | Новини | Обяви | Преводи и легализация 2002-2025 ® Copyright imot.bg
© imot.bg ползва и препоръчва хостинг услугите на Bulinfo.net
Следвайте ни в: