Локация: в близост до хипермаркет и голям спортен център, с бърза връзка с Околовръстен път.
Имотът е разположен на 2-ри жилищен етаж от общо 9.
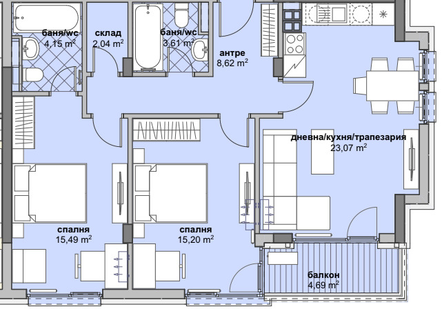
Площ: ЗП - 92.45 кв.м. РЗП - 108.17 кв.м.
Разпределение: входно антре, дневна с кухненски бокс, две спални, две бани с тоалетни, склад и тераса.
Изложение: Изток/Юг.
Степен на завършеност: ИЗКОП.
Очаквано завършване: края на 2026г.
За повече информация не се колебайте да се свържете с нас и да цитирате референтен номер: 10101 в сграда с ID: 1021.
Виж всички обяви в revolutionestate.bazar.bg или тук







