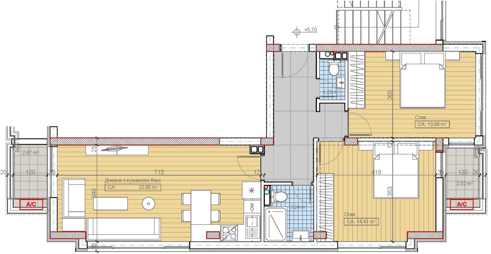
Апартамент А207 е ситуиран на 3-ти жилищен етаж и разполага със застроена площ от 85,62 кв.м., разгърната по следния практичен начин: антре, дневна с трапезария и кухненски бокс, 2 спални, баня с тоалетна, отделна тоалетна, 2 тераси. Имотът разполага и с мазе в размер на 5,16 кв.м. Изложение: изток/север/юг.
Сградата е с издаден Акт 14 и ще бъде завършена до края на 2025г. За строителството се използват високо качество строителни материали, 7 камерна дограма с троен стъклопакет, изолация от стереопор и облицовка от италбонд и HPL профили. Отопление: електричество. Има възможност за закупуване на паркоместа или гаражи на допълнителна цена.
Жилищата се предлагат на шпакловка и замазка, за да може Вашето въображение да ги превърне в мечтаните за Вас нови ДОМОВЕ! Агенцията предлага апартаменти в сградата различни по вид, изложени и квадратура. При нужда от финансиране Титан Пропъртис осигурява за клиентите си безплатна консултация с кредитен консултант.
За оглед на това и други атрактивни предложения, не се колебайте да ни потърсите на посочения телефон или да ни изпратите данните си чрез формата за запитване на сайта. Реф. номер: 563.
Виж всички обяви в titan_properties.bazar.bg или тук
        
       
         
         
         
         
         
         
         
         
         
         
         
         
         
         
             
             
             
             
             
             
             
             
             
             
             
             
             
            






