Апартаментът се намира на последния етаж в новострояща се луксозна сграда и е с две панорамни тераси. Имотът е пред акт 15, и се очаква да влезе в експлоатация средата на 2026 година.
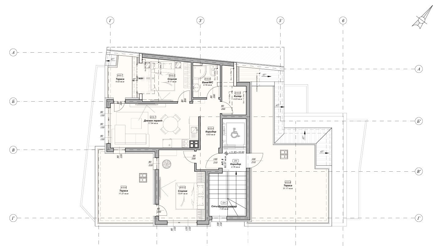
Общата площ е 114 кв.м , като терасите са 33 кв.м и могат да бъдат усвоени.
Разпределението е както следва :
Входно антре
Баня с тоалет
Килер
Дневен тракт с кухенски бокс
Спалня 1
Спалня 2
Тераса 1
Тераса 2
Апартаментът ще бъде завършен до степен БДС, по желание може и до ключ.
Квартал Аспарухово е един от най-спокойните райони в града, който е организиран с множество детски градини, училища , алеи за разходки и търговски центрове. А пътят до центъра на Варна е само 10 минути с кола.
Виж всички обяви в varnahomecenter.bazar.bg или тук







