КОД: 16822. Стефанов инвест има удоволствието да Ви представи новострояща се жилищна сграда, с модерна архитектура, разположена в Цветния квартал, в близост до Стадион Спартак.
Имате възможността да избирате от следните апартаменти:
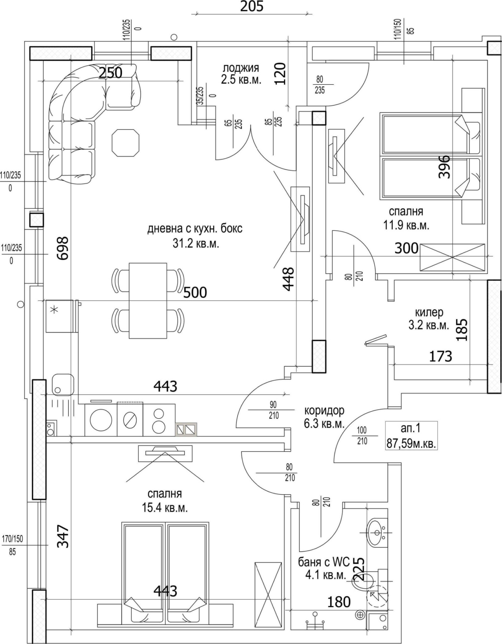
-Тристаен апартамент/1/, етаж 2, с площ от 100 кв.м., функционално разпределени във: входно антре, дневна с кухненска част-31,2 кв.м, две спални /11,9 и 15,4кв.м./,баня с тоалет, килер и тераса.. Изложение: юг, североизток. Цена 190 000 Евро!
-Тристаен апартамент/2/, етаж 2, с площ от 99 кв.м., функционално разпределени в: коридор, дневна с кухненска част-26,3 кв.м, две спални /13,3 и 13,6кв.м./,баня с тоалет, килер, перално и тераса.. Цена 185 000 Евро!
-Тристаен апартамент/7/, етаж 3, с площ от 103,56 кв.м., функционално разпределени в: коридор, дневна с кухненска част-26,3 кв.м, две спални /13,3 и 13,6кв.м./,баня с тоалет, килер, перално и тераса.. Изложение: юг, северозапад. Цена 198 000 Евро!
-Тристаен апартамент/21/, етаж 6/7, с площ от 96,82 кв.м., функционално разпределени във: входно антре, дневна с кухненска част-26 кв.м, две спални /15,4 и 13,6кв.м./,баня с тоалет, килер и тераса.. Изложение: юг, североизток. Цена 189 000 Евро!
Степен на завършеност- БДС, с гипсова мазилка и циментова замазка; Външна врата блиндирана. Срок зазавършване март 2027г
Строителят е утвърдена фирма на пазара с дългогодишен опит и изключително качествено изпълнение на строителството. Предлагат се фиксирана цена на имотите, без промяна до края на строителството.
Сградата се намира в квартал с добре развита инфраструктура. В близост има училища, детски градини, магазини. Бързият достъп до транспортни връзки осигурява удобна връзка с централните части на града.
💼'Stefanov Invest'-агенция за недвижими имоти с дългогодишен опит и член на НСНИ.
Нашите експерти ще Ви съдействат с огледи, консултация и изгодно кредитиране от водещи банки.
📍Офиси в централната и туристическа част на градовете:
🏢 Варна-ул.'Иван Вазов' 10 - 0884373727
🏢 Обзор-ул.'Кирил и Методий' 22-0887239490
Виж всички обяви в stefanovinv.bazar.bg или тук







