Вашият нов ДОМ се намира на КОТА + 2.80 на 2-ри жилищен етаж с изцяло западно изложение и застроена площ от 86,04 кв.м. + 11.53 кв.м. общи части, което се равнява на 97.57 кв.м. обща площ.
Със следното вътрешно разпределение на стаите и тяхната полезна (светла) площ:
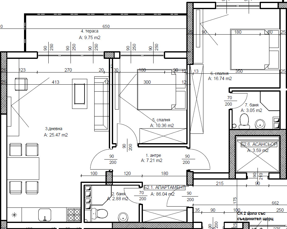
- входно антре с площ 7,21 кв.м.
- спалня с площ 10,36 кв.м.
- баня с тоалетна с площ 2,88 кв.м.
- дневна с площ 25,47 кв.м.
- тераса с площ 9,75 кв.м.
- баня с тоалетна с площ 3,05 кв.м.
- спалня с площ 16,74 кв.м.
Жилището ще бъде завършено по БДС и ще се предаде в следния завършен вид:
- стени и тавани: фина гипсова мазилка (турбозол) и фина шпакловка
- под: циментова замаска
- ПВЦ дограма 6 камерна Rehau с висок клас обков на Maco с 4 точки на притискане с високоенергиен троен стъклопакет с К-а стъкло за запазване на температурата в помещенията.
- блиндирана входна врата
- ел. до точка
- ВиК до тапа
- Асансьори Орона
- Железни парапети - праховобоядисани
- Решетки за скриване на климатичните тела по фасадата
За ваша сигурност, спокойствие и удобство за новия Ви ДОМ, предлагаме да закупите подземно парко място или гараж, за да не се налага всеки ден да обикаляте и да търсите място на което да паркирате автомобила си.
СХЕМА НА ПЛАЩАНЕ:
- 60 % на АКТ 14
- 30 % на АКТ 15
- 10 % на АКТ 16
ЕТАП НА СТРОИТЕЛСТВОТО: АКТ 14
АКТ 14 (това е документът за приемане на конструкцията на сградата, който се издава, когато сградата достигне етап груб строеж)
АКТ 15 (това е документът, с който се констатира, че сградата е напълно завършена)
АКТ 16 - до края на 2025г. (това е документа, с който сградата се въвежда в експлоатация или по просто казано годна за живеене )
Жилището очаква своите нови собственици, които ще го стопанисват и превърнат в техен дом!
За да получите повече информация за предлаганата от нас оферта може да ни се обадете на посочените телефони за връзка!
Екипът от професионалисти на ХОУМ ФОР Ю ще Ви помогне да сбъднете мечтите си и да ги превърне в реалност, като ви съдейства НАПЪЛНО БЕЗПЛАТНО при кандидатстването за жилищен кредит с ПРЕФЕРЕНЦИАЛНИ УСЛОВИЯ от най-големия кредитен консултант в България КРЕДИТ ЦЕНТЪР!
Ако предлаганият апартамент ви е харесал и представлява интерес за вас, не се колебайте да се свържете с наш брокер, за да резервирате час за оглед в удобно за вас време!
Заповядайте в нашият офис на бул. Кирил и Методий 29 Б за безплатна консултация с нашите професионалисти, които ще ви обърнат специално внимание, като ви запознаят с пазара на недвижими имоти и ви помогнат с избора на ново жилище според вашите изисквания!
Новият Ви ДОМ е точно тук!
Защото с нас мечтите стават реалност!
РЕФЕРЕНТЕН 6311
Виж всички обяви в home4u-bg.bazar.bg или тук







