Отговорен брокер: Калина Иванова
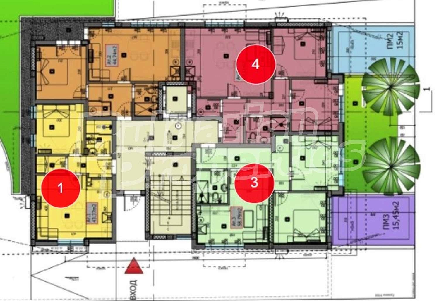
Апартамент 6 , обща площ 70.20 кв.м. (нетна площ 62.87 кв.м. + общи части 7.33 кв.м.).
Представяме на вашето внимание нов жилищен проект на доказал се инвеститор, разположен в кв. Виница. Малката бутикова сграда се намира в тих и спокоен район на 20 минути от центъра на града, близо до фитнес, зеленина и конна база, супермаркет, с бърз и удобен достъп до главен булевард Цар Борис III и редица други градски удобства.
За продажба се предлагат двустайни и тристайни жилища и паркоместа. Апартаментите ще бъдат завършени по БДС, като се предлага и довършване До ключ. Общите части са луксозни. Строителството се изпълнява с качествени материали, спрямо всички правила на съвременното строителство. Схемата на плащане е по договаряне. В допълнение може да закупите паркоместа и подземни гаражи.
Строителството на сградата ще стартира в края на 2025 г и ще завърши две години след старта.
Оглед на имота
Можем да организираме оглед на имота спрямо нашия график и възможностите за достъп до него. Заявете вашето желание за оглед, като се свържете с отговорния за офертата брокер по имейл или телефон.
Резервация на имота
Имотът може да бъде резервиран и свален от продажба със заплащане на депозит, след което се прекратява провеждането на огледи с други купувачи и започва подготовка на документите за сключване на предварителен и окончателен договор. Свържете се с отговорния брокер за подробна информация относно процедурата на покупка и начините за плащане.
Жилищен кредит
Ние си партнираме с водещите български банки и можем да ви свържем с техните консултанти за информация и кандидатстване за кредит.
...
Виж всички обяви в bpvarna.bazar.bg или тук







