Имоти plus+ има удоволствието да ви предложи 3 - стаен апартамент в Луксозен комплекс с наличен акт 16 в кв. Бояна с гледка към Витоша и София.
Намира се в централната част на кв. 'Бояна', комплекса има гледка както към града, така и към планина Витоша. Бърз достъп до ключови булеварди, като бул. 'България, бул. 'Околовръстен път'.
Комплекса: Комплекса е затворен с контролиран достъп, висок клас строителство с налични тристайни и четиристайни апартаменти, гаражи и паркоместа. Просторни и правилни разпределения и функционални сервизни помещения. Подборът на материали е създаден съобразно и с отговорност към здравината, безопасността и високото качество.
СТРОИТЕЛСТВО: Апартаментът е ситуиран на първи жилищен етаж над гаражи в тухлена сграда.
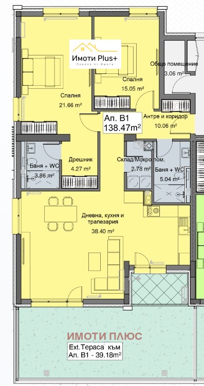
РАЗПРЕДЕЛЕНИЕ: Жилището разполага с площ от 138, 47 кв.м., разпределена в дневна с трапезария и кухненски бокс 38,40 м2, спалня-21,66 м2, спалня-15,05 м2, две бани с тоалетна, склад с мокро помещение и голяма тераса -39,18 м2.
СЪСТОЯНИЕ: На шпакловка и замазка. Отоплението е на газ. Има прокарани разводки за Климатици. Жилищата се предлагат на шпакловка и замазка, което ви дава възможност да го персонализирате и декорирате според вашия вкус.
ОБЩИ ЧАСТИ: Стълбище, фоайе, етажни коридори направени от естествен камък и алуминиеви лайсни. Асансьори: ThyssenKrupp, с качество отговарящо на реномето на марката има възможност за закупуване на паркомясто на цена 14 500 Евро или гараж.
Виж всички обяви в imotiplus.bazar.bg или тук







